
˵µ½CADÈí¼þ£¬£¬£¬£¬£¬´ó²¿·ÖÈ˵ÄÓ¡ÏóÓ¦¸ÃÊÇÍâÑóÆ·ÅÆ¾ÍÊǺᣡ£¡£¡£¡£¡£¡£¡£¡°³àÂãÂãµÄÏÈÈëΪÖ÷¡±£¡¶Ô´Ë£¬£¬£¬£¬£¬ÎÒ²»Ïë¶à·Ñ´½Éà±æÕæÎ±£¬£¬£¬£¬£¬Õâ²»ÇкÏÎ񵀮ø¸Å¡£¡£¡£¡£¡£¡£¡£¡£ÎÒÖ»ÏëÇå¾²µØËµËµÐ¡ÎÒ˽¼ÒµÄÇ××ÔÌå»á¡£¡£¡£¡£¡£¡£¡£¡£×÷ΪÖÐÍûÈí¼þµÄÀϿͻ§£¬£¬£¬£¬£¬ÎÒÃÇ̫ƽÑó½¨ÉèÉè¼ÆÓÐÏÞ¹«Ë¾Ò»Ö±Ê¹ÓÃÖÐÍûCAD×÷ΪÉè¼Æ»æÍ¼µÄÖ÷Òª¹¤¾ß¡£¡£¡£¡£¡£¡£¡£¡£×î½ü£¬£¬£¬£¬£¬ÖÐÍûCADÍÆ³öÁË2017°æ±¾£¬£¬£¬£¬£¬²¢×éÖ¯ÖÚ¶àÆóÒµµÄÒ»ÏßÉè¼ÆÊ¦¶ÔÈí¼þ¾ÙÐÐÖÜÈ«²âÊÔ¡£¡£¡£¡£¡£¡£¡£¡£ÓÚÊÇÎÒÒ²±¨Ãû¼ÓÈëÁËÕâ´ÎµÄÆÀ²âÔ˶¯¡£¡£¡£¡£¡£¡£¡£¡£
²âÊÔÀú³ÌÖУ¬£¬£¬£¬£¬ÎÒÄ£Äâ×Ô¼ºÕæÊµµÄÊÂÇéÇéÐΣ¬£¬£¬£¬£¬ÓÃÆ½Ê±ÉϰàÓõÄÌõ¼Ç±¾µçÄÔ×°ÖÃÁË×îеÄÖÐÍûCAD 2017£¬£¬£¬£¬£¬Ð޸ĺͱà¼ÏÖʵÊÂÇéÖеÄͼֽ¡£¡£¡£¡£¡£¡£¡£¡£Á½ÂÖ²âÊÔ£¬£¬£¬£¬£¬ÎÒ¶¼¼á³ÖÕâ¸ö»ùÀ´Ô´ÔòºÍ×ö·¨£¬£¬£¬£¬£¬ÒÔÇó¸üÌù½üÏÖʵÐèÇó¶ÔÈí¼þµÄ¹¦Ð§¾ÙÐп͹۵ļì²âºÍÆÀ¼Û¡£¡£¡£¡£¡£¡£¡£¡£¾²âÊÔ£¬£¬£¬£¬£¬ÎÒ¶ÔÖÐÍûCAD 2017×ÜÌåµÄÌåÑéÓÐÒÔϼ¸µã£º
Ò».½çÃæÊìϤ£¬£¬£¬£¬£¬¼æÈÝÐÔÇ¿
Ê×ÏÈÐèҪ˵Ã÷һϣ¬£¬£¬£¬£¬ÎÒ´Óʽ¨ÉèÉè¼ÆÐÐÒµÐí¶àÄêÁË£¬£¬£¬£¬£¬½Ó´¥Ê¹Óùý°üÀ¨ÖÐÍûCADÔÚÄڵĶà¿îÉè¼ÆÈí¼þ¡£¡£¡£¡£¡£¡£¡£¡£µÚÒ»´Î·¿ªÖÐÍûCAD 2017µÄʱ¼ä£¬£¬£¬£¬£¬ÎÒĪÃû±¬·¢ÏàʶÒѾõĸÐÊÜ£¬£¬£¬£¬£¬¶Ô½çÃæµÄÄÇÖÖÊìϤ¸Ð³¬ºõÁËÎÒµÄÏëÏ󣬣¬£¬£¬£¬ÍêȫûÓÐË¿ºÁÉúÊè¡£¡£¡£¡£¡£¡£¡£¡£»£»£»£»£»£ÉÐÓÐÒ»µã£¬£¬£¬£¬£¬2017°æ±¾ÒÀȻ֧³ÖRibbonºÍ¾µäÁ½ÖÖ½çÃæ£¬£¬£¬£¬£¬Éè¼ÆÊ¦¿ÉÒÔÆ¾Ö¤×Ô¼ºµÄ²Ù×÷ϰ¹ßÀ´Ñ¡ÔñÄÇÖÖ½çÃæÆø¸Å£¬£¬£¬£¬£¬ÒÔµÖ´ï×î¿ìµÄ»æÍ¼ËÙÂÊ¡£¡£¡£¡£¡£¡£¡£¡£
¹ØÓÚ½¨ÉèÉè¼Æ¹«Ë¾£¬£¬£¬£¬£¬ÓëÉè¼ÆÔº¡¢¼×·½ÓªÒµ¡¢Ê©¹¤µ¥Î»µÈ¾ÙÐÐÉè¼ÆÍ¼Ö½µÄ½»Á÷ÊÇÔÙѰ³£²»¹ýµÄ¡£¡£¡£¡£¡£¡£¡£¡£Í¼Ö½½»Á÷½»»¥£¬£¬£¬£¬£¬ÎÒÃÇ×îη¾å¡°²»¼æÈÝ¡±£¬£¬£¬£¬£¬Ò»µ©±¬·¢²»¼æÈÝ£¬£¬£¬£¬£¬¾ÍÒâζ×ÅÌØÁíÍâÊÂÇéÁ¿¡£¡£¡£¡£¡£¡£¡£¡£ÎÒÔÚ²âÊÔÖÐÒ²ÖØµãÄ¥Á·ÁËÖÐÍûCAD 2017µÄ¼æÈÝÐÔ£º·¿ª²¢±à¼ÉúÑÄÁËÐí¶àÒÔǰÍê³ÉºÍÊÕµ½µÄ´æ·ÅÔÚµçÄÔÓ²Å̵ÄÖÖÖÖͼֽ£¬£¬£¬£¬£¬Ð§¹û¶¼Ã»ÓÐÈκÎÎÊÌâ¡£¡£¡£¡£¡£¡£¡£¡£¿£¿£¿£¿£¿£¿£¿ÉÒÔ˵£¬£¬£¬£¬£¬ÖÐÍûCAD 2017ÍêÍòÄܹ»¼æÈݳ£¼ûµÄCADÎļþÃûÌ㬣¬£¬£¬£¬Ê¹µÃÎÒÃÇÔÚºÍÆäËûÉè¼ÆÊ¦¾ÙÐÐÉè¼ÆÊ±Ã»ÓÐÕϰ£¬£¬£¬£¬£¬Äܹ»×ÊÖúÎÒÃÇÔÚÉè¼ÆÀú³ÌÖÐ˳³©Íê³É»æÍ¼µÄÉè¼Æ¡£¡£¡£¡£¡£¡£¡£¡£
¶þ.64λ°æ±¾Ë³³©ÔËÐдóͼֽ
ÎÒСÎÒ˽¼ÒµÄµçÄÔʹÓõÄÊÇwin10ϵͳ£¬£¬£¬£¬£¬ÖÐÍûCAD 2017°æ±¾ÍêÈ«ÊÊÓÃÓÚwin10ϵͳ£¬£¬£¬£¬£¬²¢ÇÒ64λ°æ±¾¿ÉʹÓõ½¸ü´óÄÚ´æ¿Õ¼ä¡£¡£¡£¡£¡£¡£¡£¡£ÔÆÔÆ£¬£¬£¬£¬£¬ÎÒÃÇÔÚ·¿ª´òͼֽµÄÎȹÌÐÔºÍËÙÂÊÒ²ÏÔÖøÌá¸ß¡£¡£¡£¡£¡£¡£¡£¡£ÖÚËùÖÜÖª£¬£¬£¬£¬£¬ÐÞ½¨Ààͼֽ½ÏÁ¿´ó£¬£¬£¬£¬£¬Ê¹ÓÃ64λ°æ±¾Ö®ºó¹ØÓÚÄÚ´æµÄʹÓÃÂʽÏÁ¿¸ß£¬£¬£¬£¬£¬ÎÒÔÚ¾ÙÐÐһЩsave£¬£¬£¬£¬£¬undo£¬£¬£¬£¬£¬zoom£¬£¬£¬£¬£¬panµÈ²Ù×÷µÄʱ¼ä£¬£¬£¬£¬£¬Èí¼þµÄ·´Ó¦½ÏÁ¿Ñ¸ËÙ£¬£¬£¬£¬£¬Ã»Óп¨ÖÍÕ÷Ï󱬷¢£¬£¬£¬£¬£¬»æÍ¼µÄÌåÑéºÜÊǺᣡ£¡£¡£¡£¡£¡£¡£

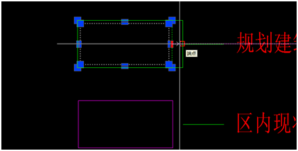
Èý.ÎÞаµÄ¼Ðµã±à¼
ÎÒÔÚ²âÊÔÀú³ÌÖз¢Ã÷£¬£¬£¬£¬£¬ÖÐÍûcad 2017ÏÔÖøÇø±ðÓÚÒÔÍù°æ±¾µÄ¹¦Ð§¾ÍÊÇÔöÌíÁËÖÐÐļе㣬£¬£¬£¬£¬ÕâÑùÔÚ¾ÙÐÐͼֽ±à¼Ê±Ê®×Ö¹â±ê¿¿½ü¼Ðµãʱ×Ô¶¯Îü¸½µ½¼ÐµãÉÏ£¬£¬£¬£¬£¬¼Ðµã¿ÉÒÔ²î±ðÑÕÉ«ÁÁÏÔ£¬£¬£¬£¬£¬²¢ÇÒÔÚ±à¼Àú³ÌÖУ¬£¬£¬£¬£¬°´¿Õ¸ñ¼ü¿ÉÇл»µ½²î±ðµÄ±à¼Ä£Ê½£º¿ÉÒÔ¾ÙÐÐͼֽµÄÀÉì¡¢ÒÆ¶¯¡¢Ðýת¡¢Ëõ·Å¡¢¾µÏñµÈ²Ù×÷¡£¡£¡£¡£¡£¡£¡£¡£ÕâÑùµÄ²Ù×÷¿ÉÒÔÈ·±£ÎÒÃÇÔÚÐÞ¸ÄͼÐÎʱ¿ÉÒÔÓиü¶à¼ÐµãÑ¡Ôñ£¬£¬£¬£¬£¬Àû±ãͼֽµÄ±à¼¡£¡£¡£¡£¡£¡£¡£¡£
ÒÔÏÂΪͨ¹ýмеãÍÏ×§¾ÙÐÐͼÐα༣º


С½á£ºÖÐÍûCAD 2017¸øÎÒ´øÀ´ÁËÏßÈËһеĸÐÊÜ£¬£¬£¬£¬£¬ÐÂÔöµÄ¹¦Ð§½øÒ»²½ÌáÉýÁË»æÍ¼µÄ±ãµ±ÐÔ¡£¡£¡£¡£¡£¡£¡£¡£ÓÉÓÚÓÐ×Ô¼ºµÄÑз¢ÍŶӣ¬£¬£¬£¬£¬ÖÐÍûCADÐí¶àÔöÌíµÄ¹¦Ð§¸ü¶àµÄ˼Á¿ÁËÎÒÃÇÒ»ÏßÉè¼ÆÊ¦µÄÐèÇ󣬣¬£¬£¬£¬ÀýÈçÔöÌíÁËÈçÅúÁ¿´òÓ¡ÕâÑùµÄ¹¦Ð§£¬£¬£¬£¬£¬¼«´óµØÌá¸ßÁË´òÓ¡³öͼµÄЧÂÊ£»£»£»£»£»£»ÊÖ»æ±í¸ñ¹¦Ð§£¨Ò²¾ÍÊÇÎÄ×ÖºÍÏßÌõ»æÖƵıí¸ñ£©¿ÉÖ±½Óµ¼³öΪExcelÎĵµ£¬£¬£¬£¬£¬Õâ¸ø»æÖÆÐÞ½¨Í¼Ö½ÖеÄÊý¾Ý´¦Öóͷ£ÌṩÁ˸ü¶àÀû±ã¡£¡£¡£¡£¡£¡£¡£¡£
×÷ÕߣºÌ«Æ½ÑóÐÞ½¨Éè¼Æ¹¤³ÌÓÐÏÞ¹«Ë¾ ĪÁ¢Ã÷
¡¤Ãâ·ÑÁì90Å·ÔªÃÅÆ±£üÖÐÍûÑûÄú¹²¸°ººÅµÍþ£º¹²¼û¹¤ÒµÊý×Ö»¯µÄÈ«Çòͼ¾°2026-02-05
¡¤ ²ú½ÌÈÚºÏÐÂʵ¼ù£ºÖÐÍûЯÊÖ¸»ÁÙ¾«¹¤¼°´¨ÄÚ¸ßУ¾ÙÐÐÊ׽조׿Խ¹¤³Ìʦ±¡±Éè¼Æ´óÈü2026-01-06
¡¤ ÖÐÍûÈí¼þÁÁÏàÕã½Æû³µÊýÖÇ»¯Äê»á£¬£¬£¬£¬£¬ÒÔ3D+¸³ÄÜÆû³µÁ㲿¼þÐÐҵתÐÍÉý¼¶2026-01-04
¡¤ ÖÐÍûÈí¼þÓ뽨Áؼ¯ÍŸ濢սÂÔÏàÖú£¡¹²ÆôÎÀ³øÐÐÒµÊý×Ö»¯Ñз¢ÐÂÕ÷³Ì2026-01-04
¡¤ ÖÐÍûCAD 365ÈëÑ¡±ÏÂíÍþ²»¶¯²ú¿Æ¼¼50Ç¿£ºÔÆÔÉúÐͬ£¬£¬£¬£¬£¬ÖØËÜÉè¼ÆÉú²úÁ¦Ð·¶Ê½2025-12-22
¡¤ ÖÐÍûÈí¼þÓë¸ñÁ¦µçÆ÷¸æ¿¢Õ½ÂÔÏàÖú£¬£¬£¬£¬£¬¹²ÖþÖйúÖÆÔìÊý×Ö»¯×ªÐͱê¸Ë2025-12-22
¡¤ ²®ÀÊÌØ»úеÈË£ºCAXÒ»Ìå»¯Æ½Ì¨Í»ÆÆÉè¼Æ±ÚÀÝ£¬£¬£¬£¬£¬¿ªÆôÖÇÄÜÖÆÔìÐÂÆªÕÂ2025-12-17
¡¤ Ä£¾ß¼Ó¹¤20Ä꣬£¬£¬£¬£¬ËûÌìÌì¶¼ÔÚ¡°Ä¥¡±Ê²Ã´£¿£¿£¿£¿£¿£¿£¿2025-12-15
¡¤ÍæÈ¤3D£ºÔõÑùÓ¦ÓÃÖÐÍû3D£¬£¬£¬£¬£¬¿ìËÙÉè¼Æ»ùÕ¾ÌìÏß´«¶¯Âݸˣ¿£¿£¿£¿£¿£¿£¿2022-02-10
¡¤È¤Íæ3D£ºÊ¹ÓÃÖÐÍû3DÉè¼Æ³µ¶¥ÕÊÅñ£¬£¬£¬£¬£¬Îª»§ÍâÐÝÏÐÔöÌíÐÂ×°±¸2021-11-25
¡¤ÏÖ´úÓëÀúÊ·µÄÅöײ£º°¢¸ù͢ѧÉúÓ¦ÓÃÖÐÍû3D£¬£¬£¬£¬£¬ÊÖÒÕÖØÏִ·ÒÆæ¡°·Éµú¡±Ì¹¿ËÔÐÍ2021-09-26
¡¤ÎÒµÄÖ鱦ÈËÉú£ºÎ÷°àÑÀÉè¼ÆÊ¦ÓÃÖÐÍû3DÉè¼Æ»ªÃÀÖ鱦2021-09-26
¡¤9¸öСÃîÕУ¬£¬£¬£¬£¬Çл»ÖÁÖÐÍûCAD¾¹¿ÉÒÔÔÆÔÆË³º¨³©ËÙ 2021-09-06
¡¤ÔÀ´²åÍ·ÊÇÕâÑùÉè¼ÆµÄ£¬£¬£¬£¬£¬¿´ÍêÄãѧ»áÁËÂ𣿣¿£¿£¿£¿£¿£¿2021-09-06
¡¤ÍæÈ¤3D£ºÔõÑùÇÉÓÃÖÐÍû3D 2022й¦Ð§£¬£¬£¬£¬£¬Éè¼Æ×¨ÊôÏà»ú£¿£¿£¿£¿£¿£¿£¿2021-08-10
¡¤CADĬÈÏÏß¿í2015-11-24
¡¤ÔõÑù½â¾öCADÆô¶¯Ó²¼þ¼ÓËÙʧ°ÜµÄÎÊÌâ2023-11-10
¡¤CADÖÐÔõÑùÊäÈëÊý×ÖµÄÉϱê2018-04-25
¡¤CADµÄÎÄ×ÖÑùʽÔõôÉèÖÃ2018-05-08
¡¤CADÎÄ×Ö±ê×¢µÄÓ÷¨2020-01-20
¡¤CADÈí¼þ³£Óÿì½Ý¼üÓÐÄÄЩ2020-03-25
¡¤CADÀÉì¸´ÖÆÊµÌåÃæÏÂÁîÔõÑùʹÓÃ2017-03-06
¡¤CADÖÐÔõÑù¿ìËÙͳһÐ޸ĶàÐÐÎÄ×ֵĸ߶È2019-08-08

Ãâ·ÑÁìÈ¡30Ì켤»îÂë
ÁªÏµ¿Í·þ
