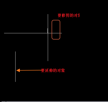
CADµÄÐÞ¼ôÓëÑÓÉìÏÂÁîÊǾ³£Ê¹Óõ½µÄÏÂÁ£¬£¬£¬£¬£¬£¬ÌØÊâÊǹØÓÚÏß¶ÎÀ´Ëµ£¬£¬£¬£¬£¬£¬£¬ÔÚ²ÝͼµÄÍêÉÆÀú³ÌÖУ¬£¬£¬£¬£¬£¬£¬ÎÒÃǾ³£Òª½«¸÷¸öÏß¶ÎÑÓÉì¡¢ÐÞ¼ô£¬£¬£¬£¬£¬£¬£¬È·¶¨Í¼Ö½ÊÇÒ»¸öÑŹ۵ġ¢×¼È·µÄÉè¼ÆÍ¼¡£¡£¡£¡£¡£¡£²¢ÇÒÐÞ¼ôºÍÑÓÉìµÄÏÂÁîÊǺÜÊÇÇ×½üµÄ£¬£¬£¬£¬£¬£¬£¬ÎÒÃÇ¿ÉÒÔÔÚÐÞ¼ôÑÓÉìÏÂÁîÖа´×¡¡°shift¡±¾ÙÐÐת»»¡£¡£¡£¡£¡£¡£ÒÔÀû±ã¿ìËٵĶԱ߽ǵÄÏ߶ξÙÐб༡£¡£¡£¡£¡£¡£ÎÒÃǽ«ÏÂÃæÒ»¸öÈýÌõÏ߶εIJÝͼ×÷Ϊ¼òÆÓµÄÀý×Ó¡£¡£¡£¡£¡£¡£ÓÒÉϽǵÄÊÇÒªÐÞ¼ôµÄÏÂÁî¡£¡£¡£¡£¡£¡£×óϽǵÄÒªÓõ½ÑÓÉì¡£¡£¡£¡£¡£¡£

ÎÒÃÇÊäÈëÐÞ¼ô¿ìËÙÏÂÁî·û¡°TR¡±¡£¡£¡£¡£¡£¡£È»ºóѡժҪÐÞ½¨µÄÏ߶Σ¬£¬£¬£¬£¬£¬£¬ÔÙÖ®ºóÑ¡Ôñ´°½»¹¤¾ß£¬£¬£¬£¬£¬£¬£¬½«ÉÏÃæÈ¦³öÀ´µÄÏß¶ÎÑ¡Ôñ£¬£¬£¬£¬£¬£¬£¬»Ø³µÈ·¶¨£¬£¬£¬£¬£¬£¬£¬ÕâÑù£¬£¬£¬£¬£¬£¬£¬È¦³öÀ´µÄÏ߶ξͱ»ÐÞ¼ôµôÁË¡£¡£¡£¡£¡£¡£
Õâʱ£¬£¬£¬£¬£¬£¬£¬ÎÒÃÇ¿ÉÒÔÆ¾Ö¤ÌáÐÑ£¬£¬£¬£¬£¬£¬£¬Ò»Ö±°´×¡shift£¬£¬£¬£¬£¬£¬£¬Ñ¡ÕªÒªÑÓÉìµÄÏ߶Σ¬£¬£¬£¬£¬£¬£¬µã»÷£¬£¬£¬£¬£¬£¬£¬¿ÉÒÔ¿´µ½£¬£¬£¬£¬£¬£¬£¬Ïß¶ÎÒѾ×Ô¶¯µÄÑÓÉìµ½ÓëˮƽֱÏßÏཻ¡£¡£¡£¡£¡£¡£Ò²¿ÉÒÔÊäÈëÏÂÁî·û¡°EXTEND¡±À´Ö´ÐÐÑÓÉìÏÂÁî¡£¡£¡£¡£¡£¡£


¡¤Ãâ·ÑÁì90Å·ÔªÃÅÆ±£üÖÐÍûÑûÄú¹²¸°ººÅµÍþ£º¹²¼û¹¤ÒµÊý×Ö»¯µÄÈ«Çòͼ¾°2026-02-05
¡¤ ²ú½ÌÈÚºÏÐÂʵ¼ù£ºÖÐÍûЯÊÖ¸»ÁÙ¾«¹¤¼°´¨ÄÚ¸ßУ¾ÙÐÐÊ׽조׿Խ¹¤³Ìʦ±¡±Éè¼Æ´óÈü2026-01-06
¡¤ ÖÐÍûÈí¼þÁÁÏàÕã½Æû³µÊýÖÇ»¯Äê»á£¬£¬£¬£¬£¬£¬£¬ÒÔ3D+¸³ÄÜÆû³µÁ㲿¼þÐÐҵתÐÍÉý¼¶2026-01-04
¡¤ ÖÐÍûÈí¼þÓ뽨Áؼ¯ÍŸ濢սÂÔÏàÖú£¡¹²ÆôÎÀ³øÐÐÒµÊý×Ö»¯Ñз¢ÐÂÕ÷³Ì2026-01-04
¡¤ ÖÐÍûCAD 365ÈëÑ¡±ÏÂíÍþ²»¶¯²ú¿Æ¼¼50Ç¿£ºÔÆÔÉúÐͬ£¬£¬£¬£¬£¬£¬£¬ÖØËÜÉè¼ÆÉú²úÁ¦Ð·¶Ê½2025-12-22
¡¤ ÖÐÍûÈí¼þÓë¸ñÁ¦µçÆ÷¸æ¿¢Õ½ÂÔÏàÖú£¬£¬£¬£¬£¬£¬£¬¹²ÖþÖйúÖÆÔìÊý×Ö»¯×ªÐͱê¸Ë2025-12-22
¡¤ ²®ÀÊÌØ»úеÈË£ºCAXÒ»Ìå»¯Æ½Ì¨Í»ÆÆÉè¼Æ±ÚÀÝ£¬£¬£¬£¬£¬£¬£¬¿ªÆôÖÇÄÜÖÆÔìÐÂÆªÕÂ2025-12-17
¡¤ Ä£¾ß¼Ó¹¤20Ä꣬£¬£¬£¬£¬£¬£¬ËûÌìÌì¶¼ÔÚ¡°Ä¥¡±Ê²Ã´£¿£¿£¿£¿£¿£¿£¿£¿2025-12-15
¡¤ÍæÈ¤3D£ºÔõÑùÓ¦ÓÃÖÐÍû3D£¬£¬£¬£¬£¬£¬£¬¿ìËÙÉè¼Æ»ùÕ¾ÌìÏß´«¶¯Âݸˣ¿£¿£¿£¿£¿£¿£¿£¿2022-02-10
¡¤È¤Íæ3D£ºÊ¹ÓÃÖÐÍû3DÉè¼Æ³µ¶¥ÕÊÅñ£¬£¬£¬£¬£¬£¬£¬Îª»§ÍâÐÝÏÐÔöÌíÐÂ×°±¸2021-11-25
¡¤ÏÖ´úÓëÀúÊ·µÄÅöײ£º°¢¸ù͢ѧÉúÓ¦ÓÃÖÐÍû3D£¬£¬£¬£¬£¬£¬£¬ÊÖÒÕÖØÏִ·ÒÆæ¡°·Éµú¡±Ì¹¿ËÔÐÍ2021-09-26
¡¤ÎÒµÄÖ鱦ÈËÉú£ºÎ÷°àÑÀÉè¼ÆÊ¦ÓÃÖÐÍû3DÉè¼Æ»ªÃÀÖ鱦2021-09-26
¡¤9¸öСÃîÕУ¬£¬£¬£¬£¬£¬£¬Çл»ÖÁÖÐÍûCAD¾¹¿ÉÒÔÔÆÔÆË³º¨³©ËÙ 2021-09-06
¡¤ÔÀ´²åÍ·ÊÇÕâÑùÉè¼ÆµÄ£¬£¬£¬£¬£¬£¬£¬¿´ÍêÄãѧ»áÁËÂ𣿣¿£¿£¿£¿£¿£¿£¿2021-09-06
¡¤ÍæÈ¤3D£ºÔõÑùÇÉÓÃÖÐÍû3D 2022й¦Ð§£¬£¬£¬£¬£¬£¬£¬Éè¼Æ×¨ÊôÏà»ú£¿£¿£¿£¿£¿£¿£¿£¿2021-08-10
¡¤CADÔõÑùÉèÖúÍÏÔʾÏß¿í2016-08-03
¡¤CAD½Ç¶ÈÓ뻡¶Èת»»2016-10-31
¡¤¿Í»§¶Ë²»¿ÉÕý³£´ÓЧÀÍÆ÷»ñÈ¡ÊÚȨ2017-02-15
¡¤Tab ¼üÔÚCAD ÖеÄÇÉÃîʹÓÃ2018-09-21
¡¤CAD½¨Éè¿éʧ°ÜÊÇΪʲô2025-04-17
¡¤CADͼÏñͼֽÃûÌÃÔõô²Ù×÷2023-08-14
¡¤CADÔõÑùÓÃÏÂÁîÐ޸ĵãÑùʽ2019-12-25

Ãâ·ÑÁìÈ¡30Ì켤»îÂë
ÁªÏµ¿Í·þ
