ÎÒÃÇÔÚʹÓÃCADÀ´»æÖÆ23411ÓÀÀûǽÏßµÄʱ¼ä£¬£¬£¬£¬£¬£¬ÎÒÃÇ»áÓÃÄÇÖÖð¯×¾µÄÒªÁì¡£¡£¡£¡£¡£ÄǾÍÊÇÒ»¸ù¸ùµÄ»³ö23411ÓÀÀûǽÏߣ¬£¬£¬£¬£¬£¬ÕâÖÖ·½·¨Ö»ÊÇÊʺÏÓë³õѧÕß¡£¡£¡£¡£¡£µ±ÎÒÃÇÄܹ»ÊìÁ·µÄ²Ù×÷CADµÄʱ¼ä£¬£¬£¬£¬£¬£¬ÎÒÃÇ¿ÉÒÔʹÓÃCADµÄ¶àÏßÏÂÁîÀ´¿ìËٵĻæÖÆ23411ÓÀÀûǽÏßÁË¡£¡£¡£¡£¡£
ÏÂÃæÎÒÃÇÀ´¿´¿´ÔõÑù²Ù×÷£¬£¬£¬£¬£¬£¬¸÷ÈËÓÐÐèÒª¿ÉÒԲο¼²Î¿¼
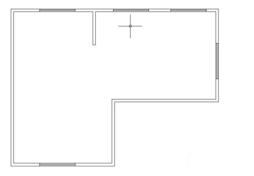
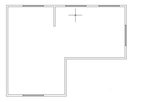
²»ÏëÒªÒ»¸ù¸ùÀ´»Ç½Ïߵϰ£¬£¬£¬£¬£¬£¬ÔÛÃǾÍʹÓÃCADÖеĶàÏßÏÂÁîÀ´»°É£¬£¬£¬£¬£¬£¬²Î¿¼ÏÂͼ¡£¡£¡£¡£¡£

1¡¢ÏÈÔÚcadÖл³öÖáÏߣ¬£¬£¬£¬£¬£¬ÐγÉÖáÏßÍø¡£¡£¡£¡£¡£

2¡¢»ÍêÖáÏßÍøºó£¬£¬£¬£¬£¬£¬ÔÚÏÂÁîÐÐÊäÈë¡°mlstyle¡±ÏÂÁîÇûسµ¼ü¡£¡£¡£¡£¡£

3¡¢µ¯³öн¨¶àÏßÑùʽ£¬£¬£¬£¬£¬£¬µ¥»÷н¨Ìîд¶àÏßÃû³Æµ¥»÷¼ÌÐø¡£¡£¡£¡£¡£
4¡¢µ¯³öн¨¶àÏßÑùʽ´°¿Ú£¬£¬£¬£¬£¬£¬ÔÚͼԪÖеã»÷Ìí¼Ó°´Å¥£¬£¬£¬£¬£¬£¬½«Ò»ÏîÆ«ÒÆ¸ÄΪ1.2ÖÐÐÄΪ0µÚÈýÏî¸ÄΪ-1.2µã»÷È·¶¨¡£¡£¡£¡£¡£
5¡¢ÉèÖÃÍê³Éºó£¬£¬£¬£¬£¬£¬ÔÚÏÂÁîÐÐÊäÈë¡°ml¡±ÏÂÁîÇûسµ¼ü¡£¡£¡£¡£¡£

6¡¢ÏÂÁîÖ´Ðк󣬣¬£¬£¬£¬£¬ÊäÈë¶ÔÕýj½«¶ÔÕýÊäÈëÀàÐ͸ÄΪÎÞ£¬£¬£¬£¬£¬£¬ÔÚÊäÈë±ÈÀýs½«ÊäÈë¶àÏß±ÈÀý¸ÄΪ1¡£¡£¡£¡£¡£


7¡¢ÉèÖÃÍê³Éºó£¬£¬£¬£¬£¬£¬ÔÚÖáÏßÍøÖÐÖÆ¶©¶àÏ߯ðµã£¬£¬£¬£¬£¬£¬µ¥»÷Æðµãºóƾ֤ͼֽҪÇó»³öǽÏß¡£¡£¡£¡£¡£

8¡¢Ç½ÏßËùÓлÍêºóƾ֤ͼֽ¾ÙÐÐÐÞ¼ô¾ÍÐÐÁË¡£¡£¡£¡£¡£


×¢ÖØÊÂÏǽÏ߯«ÒÆÒªÆ¾Ö¤ÏÖʵǽºñÀ´ÉèÖÃŶ¡£¡£¡£¡£¡£
ÍÆ¼öÔĶÁ£ºCADÔõÑù½«ÈýάʵÌåÐýת²¢ÇÒ¼Óºñ
¡¤Ãâ·ÑÁì90Å·ÔªÃÅÆ±£üÖÐÍûÑûÄú¹²¸°ººÅµÍþ£º¹²¼û¹¤ÒµÊý×Ö»¯µÄÈ«Çòͼ¾°2026-02-05
¡¤ ²ú½ÌÈÚºÏÐÂʵ¼ù£ºÖÐÍûЯÊÖ¸»ÁÙ¾«¹¤¼°´¨ÄÚ¸ßУ¾ÙÐÐÊ׽조׿Խ¹¤³Ìʦ±¡±Éè¼Æ´óÈü2026-01-06
¡¤ ÖÐÍûÈí¼þÁÁÏàÕã½Æû³µÊýÖÇ»¯Äê»á£¬£¬£¬£¬£¬£¬ÒÔ3D+¸³ÄÜÆû³µÁ㲿¼þÐÐҵתÐÍÉý¼¶2026-01-04
¡¤ ÖÐÍûÈí¼þÓ뽨Áؼ¯ÍŸ濢սÂÔÏàÖú£¡¹²ÆôÎÀ³øÐÐÒµÊý×Ö»¯Ñз¢ÐÂÕ÷³Ì2026-01-04
¡¤ ÖÐÍûCAD 365ÈëÑ¡±ÏÂíÍþ²»¶¯²ú¿Æ¼¼50Ç¿£ºÔÆÔÉúÐͬ£¬£¬£¬£¬£¬£¬ÖØËÜÉè¼ÆÉú²úÁ¦Ð·¶Ê½2025-12-22
¡¤ ÖÐÍûÈí¼þÓë¸ñÁ¦µçÆ÷¸æ¿¢Õ½ÂÔÏàÖú£¬£¬£¬£¬£¬£¬¹²ÖþÖйúÖÆÔìÊý×Ö»¯×ªÐͱê¸Ë2025-12-22
¡¤ ²®ÀÊÌØ»úеÈË£ºCAXÒ»Ìå»¯Æ½Ì¨Í»ÆÆÉè¼Æ±ÚÀÝ£¬£¬£¬£¬£¬£¬¿ªÆôÖÇÄÜÖÆÔìÐÂÆªÕÂ2025-12-17
¡¤ Ä£¾ß¼Ó¹¤20Ä꣬£¬£¬£¬£¬£¬ËûÌìÌì¶¼ÔÚ¡°Ä¥¡±Ê²Ã´£¿£¿£¿£¿£¿2025-12-15
¡¤ÍæÈ¤3D£ºÔõÑùÓ¦ÓÃÖÐÍû3D£¬£¬£¬£¬£¬£¬¿ìËÙÉè¼Æ»ùÕ¾ÌìÏß´«¶¯Âݸˣ¿£¿£¿£¿£¿2022-02-10
¡¤È¤Íæ3D£ºÊ¹ÓÃÖÐÍû3DÉè¼Æ³µ¶¥ÕÊÅñ£¬£¬£¬£¬£¬£¬Îª»§ÍâÐÝÏÐÔöÌíÐÂ×°±¸2021-11-25
¡¤ÏÖ´úÓëÀúÊ·µÄÅöײ£º°¢¸ù͢ѧÉúÓ¦ÓÃÖÐÍû3D£¬£¬£¬£¬£¬£¬ÊÖÒÕÖØÏִ·ÒÆæ¡°·Éµú¡±Ì¹¿ËÔÐÍ2021-09-26
¡¤ÎÒµÄÖ鱦ÈËÉú£ºÎ÷°àÑÀÉè¼ÆÊ¦ÓÃÖÐÍû3DÉè¼Æ»ªÃÀÖ鱦2021-09-26
¡¤9¸öСÃîÕУ¬£¬£¬£¬£¬£¬Çл»ÖÁÖÐÍûCAD¾¹¿ÉÒÔÔÆÔÆË³º¨³©ËÙ 2021-09-06
¡¤ÔÀ´²åÍ·ÊÇÕâÑùÉè¼ÆµÄ£¬£¬£¬£¬£¬£¬¿´ÍêÄãѧ»áÁËÂ𣿣¿£¿£¿£¿2021-09-06
¡¤ÍæÈ¤3D£ºÔõÑùÇÉÓÃÖÐÍû3D 2022й¦Ð§£¬£¬£¬£¬£¬£¬Éè¼Æ×¨ÊôÏà»ú£¿£¿£¿£¿£¿2021-08-10
¡¤CADÄÚÀïΪʲôÓÐЩͼ¿éÎÞ·¨±à¼ºÍÕ¨¿ª£¿£¿£¿£¿£¿2018-09-12
¡¤CADÇÉɾ֨¸´¹¤¾ß2020-01-07
¡¤CADÔõÑùµ¼Èë¿ì½Ý¼üÎļþ2024-11-14
¡¤CADÖÐÊó±êÖмü»¬¶¯ºóËõ·Å±ÈÀýÌ«´óÔõô°ì2021-03-09
¡¤ÔõÑùÔÚCADÖÐʹÓÃÍÏ·Å·½·¨Ö±½Ó·¿ªÍ¼Ö½Îļþ2023-10-07
¡¤ÔÚCADÖÐÍ϶¯¹â±ê»òͼÐηºÆðÖØÓ°¸ÃÔõô°ì£¿£¿£¿£¿£¿2019-12-16
¡¤CADͼ²ã»òÍⲿ²ÎÕÕÃæ°åÀο¿ÔÚ¶¥²¿Íϲ»³öÀ´Ôõô°ì£¿£¿£¿£¿£¿2021-06-03
¡¤CADÓ²¼ÓÃÜÊÚȨ£¬£¬£¬£¬£¬£¬ÎªÊ²Ã´¶ÁÈ¡µÄ¼ÓÃÜËøIDºÅΪ¿Õ2025-04-02

Ãâ·ÑÁìÈ¡30Ì켤»îÂë
ÁªÏµ¿Í·þ
