CADÔÚ»æÖÆÖÐÏßµÄʱ¼ä£¬£¬£¬£¬£¬£¬ÓÐЩÈ˵ÄÏÔʾ¾ÍÊÇÒ»ÌõÖ±Ïߣ¬£¬£¬£¬£¬£¬ÕâÑù»áµ¼ÖºóÆÚµÄ»æÍ¼²»Àû±ãºÍ²»ÏÔ×Å£¬£¬£¬£¬£¬£¬ÈÝÒ×µ¼ÖÂʧÎóºÍ²»ÐëÒªµÄƶÀ§¡£¡£¡£¡£¡£¡£¡£ÎÒÃÇÔõô²Å»ªÉèÖúÃCADµÄÖÐÐÄÏßÄØ£¿£¿£¿£¿£¿£¿£¿£¿
ÎÒÃÇÀ´¿´¿ì½â¾ö²½·¥£¬£¬£¬£¬£¬£¬ÆÊÎöÒ»ÏÂÕâÑùµÄÔµ¹ÊÔÓÉ¡£¡£¡£¡£¡£¡£¡£
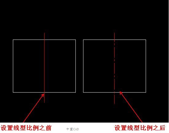
ÎÊÌâµÄËùÔÚÊÇÓÉÓÚCADÖеÄÏßÐͱÈÀýÉèÖõIJ¢²»¶ÔÀí¡£¡£¡£¡£¡£¡£¡£
ÎÒÃǸü¸ÄÒ»ÏÂÕⲿ·ÖµÄÉèÖü´¿É¡£¡£¡£¡£¡£¡£¡£ÎÒÃÇÔÚÏÂÁîÐÐÖÐÊäÈ롾LTS¡¿¼´ÎªÏßÐͱÈÀýµÄ¿ì½Ý¼ü£¬£¬£¬£¬£¬£¬»Ø³µºóÎÒÃÇ¿ÉÒÔ¿´µ½ÊäÈëÐÂÏßÐͱÈÀýÒò×Ó£¬£¬£¬£¬£¬£¬ÔÚÕâ¸ö²¿·ÖÎÒÃÇÊäÈë2£¬£¬£¬£¬£¬£¬»Ø³µºó£¬£¬£¬£¬£¬£¬·¢Ã÷ÏÖÔÚµÄÏß¶ÎÊÇÒ»ÖÐÐÄÏßÏÔʾµÄÐÎʽ¡£¡£¡£¡£¡£¡£¡£ÎÒÃÇ¿ÉÒÔ¿´¿´ÏÂͼµÄÒ»¸ö±ÈÕÕ£¬£¬£¬£¬£¬£¬ÊDz»ÊÇ23411ÓÀÀûÖÐÐÄÏßÔ½·¢ÏÔ×ÅÁË¡£¡£¡£¡£¡£¡£¡£

ÍÆ¼öÔĶÁ£º CADÖÐÔõÑù½«Ô²»µÄ¸üÔ²»¬£¿£¿£¿£¿£¿£¿£¿£¿
¡¤Ãâ·ÑÁì90Å·ÔªÃÅÆ±£üÖÐÍûÑûÄú¹²¸°ººÅµÍþ£º¹²¼û¹¤ÒµÊý×Ö»¯µÄÈ«Çòͼ¾°2026-02-05
¡¤ ²ú½ÌÈÚºÏÐÂʵ¼ù£ºÖÐÍûЯÊÖ¸»ÁÙ¾«¹¤¼°´¨ÄÚ¸ßУ¾ÙÐÐÊ׽조׿Խ¹¤³Ìʦ±¡±Éè¼Æ´óÈü2026-01-06
¡¤ ÖÐÍûÈí¼þÁÁÏàÕã½Æû³µÊýÖÇ»¯Äê»á£¬£¬£¬£¬£¬£¬ÒÔ3D+¸³ÄÜÆû³µÁ㲿¼þÐÐҵתÐÍÉý¼¶2026-01-04
¡¤ ÖÐÍûÈí¼þÓ뽨Áؼ¯ÍŸ濢սÂÔÏàÖú£¡¹²ÆôÎÀ³øÐÐÒµÊý×Ö»¯Ñз¢ÐÂÕ÷³Ì2026-01-04
¡¤ ÖÐÍûCAD 365ÈëÑ¡±ÏÂíÍþ²»¶¯²ú¿Æ¼¼50Ç¿£ºÔÆÔÉúÐͬ£¬£¬£¬£¬£¬£¬ÖØËÜÉè¼ÆÉú²úÁ¦Ð·¶Ê½2025-12-22
¡¤ ÖÐÍûÈí¼þÓë¸ñÁ¦µçÆ÷¸æ¿¢Õ½ÂÔÏàÖú£¬£¬£¬£¬£¬£¬¹²ÖþÖйúÖÆÔìÊý×Ö»¯×ªÐͱê¸Ë2025-12-22
¡¤ ²®ÀÊÌØ»úеÈË£ºCAXÒ»Ìå»¯Æ½Ì¨Í»ÆÆÉè¼Æ±ÚÀÝ£¬£¬£¬£¬£¬£¬¿ªÆôÖÇÄÜÖÆÔìÐÂÆªÕÂ2025-12-17
¡¤ Ä£¾ß¼Ó¹¤20Ä꣬£¬£¬£¬£¬£¬ËûÌìÌì¶¼ÔÚ¡°Ä¥¡±Ê²Ã´£¿£¿£¿£¿£¿£¿£¿£¿2025-12-15
¡¤ÍæÈ¤3D£ºÔõÑùÓ¦ÓÃÖÐÍû3D£¬£¬£¬£¬£¬£¬¿ìËÙÉè¼Æ»ùÕ¾ÌìÏß´«¶¯Âݸˣ¿£¿£¿£¿£¿£¿£¿£¿2022-02-10
¡¤È¤Íæ3D£ºÊ¹ÓÃÖÐÍû3DÉè¼Æ³µ¶¥ÕÊÅñ£¬£¬£¬£¬£¬£¬Îª»§ÍâÐÝÏÐÔöÌíÐÂ×°±¸2021-11-25
¡¤ÏÖ´úÓëÀúÊ·µÄÅöײ£º°¢¸ù͢ѧÉúÓ¦ÓÃÖÐÍû3D£¬£¬£¬£¬£¬£¬ÊÖÒÕÖØÏִ·ÒÆæ¡°·Éµú¡±Ì¹¿ËÔÐÍ2021-09-26
¡¤ÎÒµÄÖ鱦ÈËÉú£ºÎ÷°àÑÀÉè¼ÆÊ¦ÓÃÖÐÍû3DÉè¼Æ»ªÃÀÖ鱦2021-09-26
¡¤9¸öСÃîÕУ¬£¬£¬£¬£¬£¬Çл»ÖÁÖÐÍûCAD¾¹¿ÉÒÔÔÆÔÆË³º¨³©ËÙ 2021-09-06
¡¤ÔÀ´²åÍ·ÊÇÕâÑùÉè¼ÆµÄ£¬£¬£¬£¬£¬£¬¿´ÍêÄãѧ»áÁËÂ𣿣¿£¿£¿£¿£¿£¿£¿2021-09-06
¡¤ÍæÈ¤3D£ºÔõÑùÇÉÓÃÖÐÍû3D 2022й¦Ð§£¬£¬£¬£¬£¬£¬Éè¼Æ×¨ÊôÏà»ú£¿£¿£¿£¿£¿£¿£¿£¿2021-08-10
¡¤CADÖÐÔõÑùʹÓÃÍⲿ²ÎÕÕ½¨É軨԰2019-08-23
¡¤CADÔõôÔÚ´òÓ¡ÑùʽÄÚÍâÉèÖóöͼµÄÏß¿í2025-04-17
¡¤CADÔõÑùÏû³ýͼֽÖзºÆðµÄÊ®×Ö²æ2023-08-22
¡¤CADÔõÑùʵÏÖ½öÏÔʾѡ¶¨¹¤¾ßµÄͼ²ã2025-04-18
¡¤CADÖÐÖ±Ïß²»¹²ÃæµÄ½â¾öÒªÁì2017-02-08
¡¤CADʲôÊÇ͸Ã÷ÏÂÁ£¿£¿£¿£¿£¿£¿£¿2021-05-28
¡¤CADÔõÑùÖ´ÐдòÓ¡²Ù×÷2021-10-19
¡¤CAD»æÍ¼µÄ80¸öÊÊÓÃÖÆÍ¼¼¼ÇÉ£¨¶þ£©2017-11-27

Ãâ·ÑÁìÈ¡30Ì켤»îÂë
ÁªÏµ¿Í·þ
