ÎÒÃÇÔÚCADÖÐÐèÒª¾ÙÐÐ¶ÔÆ½¼üºÍ³ÝÂÖµÄ×°Ö㬣¬£¬£¬£¬£¬£¬£¬µ±ÕâÑùÊÇÎÒÃǸÃÔõÑù׼ȷ²Ù×÷»æÖÆÎÒÃÇÐèÒªµÄÄÚÈÝ£¬£¬£¬£¬£¬£¬£¬£¬¸÷È˿ɲο¼ÎÒÃÇÏÂÁеİ취£¬£¬£¬£¬£¬£¬£¬£¬¿´¿´ÊÇ·ñÄܹ»°ïµ½¸÷ÈË¡£¡£¡£¡£¡£¡£¡£
1£®ÖáµÄ»æÖÆ
Ö±Ï߯¾Ö¤Ã¿¸öÖá¼çµÄ³ß´çÏÈ»æÖÆÖáµÄÒ»°ë£¬£¬£¬£¬£¬£¬£¬£¬È»ºóʹÓþµÏñ¹¤¾ß½«ÒÑ»æÖƵÄÖáÒÔÒ»×îÏÈ»æ
ÖÆµÄˮƽÖÐÐÄÏßΪ¶Ô³ÆÖá¾µÏñ¡£¡£¡£¡£¡£¡£¡£ÖáÓɳ¤¶ÈΪ58¡¢56¡¢41¡¢60¡¢10¡¢10¡¢30µÄÖá¶Î×é³É£¬£¬£¬£¬£¬£¬£¬£¬¶øËüÃǵĶÔÓ¦°ë¾¶»®·ÖÊÇ17.5¡¢20¡¢22.5¡¢24¡¢27.5¡¢26¡¢22.5¡£¡£¡£¡£¡£¡£¡£
»æÖƺú󣬣¬£¬£¬£¬£¬£¬£¬½øÈë¿é±à¼Æ÷¾ÙÐÐÀÉìÐж¯¿é²Ù×÷¡£¡£¡£¡£¡£¡£¡£

2£®¼ü
¾ØÐλæÖÆÒ»³¤56£¬£¬£¬£¬£¬£¬£¬£¬¿íΪ10µÄ¾ØÐΣ¬£¬£¬£¬£¬£¬£¬£¬Ñ¡ÓÃÔ²½Ç¹¤¾ßµ¹Ô²½Ç£¬£¬£¬£¬£¬£¬£¬£¬µ¹½Ç°ë¾¶Îª5¡£¡£¡£¡£¡£¡£¡£
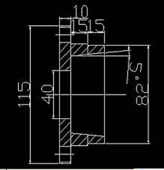
3£®³ÝÂÖ
³ÝÂÖÆÊÊÓͼÊǽ«³ÝÂÖ°ëÆÊ½â»ñµÃµÄ£¬£¬£¬£¬£¬£¬£¬£¬ÏêϸÐÎ×´ºÍ³ß´ç¼ûÊÓÆµ²Ù×÷¡£¡£¡£¡£¡£¡£¡£
³ÝÂÖ¸©ÊÓͼÊÇÆ¾Ö¤»úÐµÖÆÍ¼Öеġ°¸ß¡¢Æ½¡¢Æë¡±µÄ¶ÔÓ¦ÔÔò»æÖƵ쬣¬£¬£¬£¬£¬£¬£¬ÏÈÓÃÖ±Ïß²¶»ñÆÊÊÓ
ͼÉϵIJο¼µã×öˮƽÀÉì×ö¸¨ÖúÏߣ¬£¬£¬£¬£¬£¬£¬£¬Ñ¡ÔñÔ²²¶»ñ¸¨ÖúÏßÉϵÄÇеã×öÂÖì±ÐÎ×´¡£¡£¡£¡£¡£¡£¡£×îºóʹÓÃÕóÁй¤¾ß»æÖƳÝÂÖÉϵijݣ¬£¬£¬£¬£¬£¬£¬£¬³ÝÊýΪ38¸ö¡£¡£¡£¡£¡£¡£¡£
»æÖƺú󣬣¬£¬£¬£¬£¬£¬£¬½øÈë¿é±à¼Æ÷¾ÙÐÐËõ·ÅÐж¯¿é²Ù×÷¡£¡£¡£¡£¡£¡£¡£

4£®¹öÇòÖá³Ð

ÎÂϰ¹¤¾ßÑ¡Ïî°å´°¿Ú£¬£¬£¬£¬£¬£¬£¬£¬Í¨¹ý¹¤¾ßÑ¡Ïî°å´°¿ÚÖ±½Ó²åÈë¹öÖéÖá³Ð¶¯Ì¬¿é¡£¡£¡£¡£¡£¡£¡£
¹¤¾ßÑ¡Ïî°å´°¿Ú²Ù×÷£ºµã»÷¡°¹¤¾ß¡±²Ëµ¥>¹¤¾ßÑ¡Ïî°å£¬£¬£¬£¬£¬£¬£¬£¬ÔÚµ¯³öµÄÑ¡Ïî°åÖÐÑ¡Ôñ»úеģ°åÖеĹöÖéÖá³Ð£¬£¬£¬£¬£¬£¬£¬£¬Ö±½Ó²åÈëCAD½çÃæ¼´¿É¡£¡£¡£¡£¡£¡£¡£
5£®Öá³Ð¸Ç×Ó
Ïêϸ²Ù×÷¼ûÊÓÆµ¡£¡£¡£¡£¡£¡£¡£ÕâÀïÒª×¢ÖØ×óÖá³Ð¸ÇºÍÓÒÖá³Ð¾Ö²¿ÐÎ×´·×ÆçÑù£¬£¬£¬£¬£¬£¬£¬£¬×óÖá³Ð¸ÇÔÚÖÐÐÄÏßλ
ÖöàÒ»¸öÖ±¾¶40µÄͨ¿×¡£¡£¡£¡£¡£¡£¡£

6£®Áã¼þ×é×°
ÒÔ¸÷¸öÁã¼þµÄˮƽÖÐÐÄÏßΪ»ù×¼Ïߣ¬£¬£¬£¬£¬£¬£¬£¬Ê¹ÓÃÒÆ¶¯ºÍ¸´Öƹ¦Ð§²¶»ñÌØÕ÷µã¾ÙÐÐ×°Öᣡ£¡£¡£¡£¡£¡£
×°ÅäºÃºó£¬£¬£¬£¬£¬£¬£¬£¬½øÈë¿é±à¼Æ÷ÖоÙÐÐÁã¼þ¿É¼ûÐÔ¿é²Ù×÷¡£¡£¡£¡£¡£¡£¡£

7£®Áã¼þ±êºÅ±ê×¢
ʹÓÃÐÂÔö¹¦Ð§£ºÏîÄ¿·ûºÅºÍÁбí¶Ô×°ÅäͼÉϵÄÁã¼þ¾ÙÐÐ×¢ÊÍ¡£¡£¡£¡£¡£¡£¡£
²Ù×÷°ì·¨£º»æÍ¼>ÎÄ×Ö>¶àÐÐÎÄ×Ö¡£¡£¡£¡£¡£¡£¡£ÔÚµ¯³öµÄÎÄ×ÖÃûÌöԻ°¿òÖе¥»÷Ñ¡ÏŦ£¬£¬£¬£¬£¬£¬£¬£¬Ñ¡ÔñÏîÄ¿·ûºÅºÍÁÐ±í¡£¡£¡£¡£¡£¡£¡£
8£®ÌáÈ¡¿ì²Ù×÷Êý¾Ý
ʹÓÃÐÂÔö¹¦Ð§£º´Ó¿éÊôÐÔÖÐÌáÈ¡Êý¾Ý¶Ô¶þάCAD²Ù×÷»·½ÚµÄ¿é²Ù×÷ÐÅÏ¢¾ÙÐÐÊý¾ÝÌáÈ¡¡£¡£¡£¡£¡£¡£¡£
²Ù×÷°ì·¨£º¹¤¾ß>ÊôÐÔÌáÈ¡¡£¡£¡£¡£¡£¡£¡£
ÍÆ¼öÔĶÁ£ºCAD»æÖÆÈýάÏÊ»¨½Ì³Ì
ÍÆ¼öÔĶÁ£ºCADÅàѵ
¡¤Ãâ·ÑÁì90Å·ÔªÃÅÆ±£üÖÐÍûÑûÄú¹²¸°ººÅµÍþ£º¹²¼û¹¤ÒµÊý×Ö»¯µÄÈ«Çòͼ¾°2026-02-05
¡¤ ²ú½ÌÈÚºÏÐÂʵ¼ù£ºÖÐÍûЯÊÖ¸»ÁÙ¾«¹¤¼°´¨ÄÚ¸ßУ¾ÙÐÐÊ׽조׿Խ¹¤³Ìʦ±¡±Éè¼Æ´óÈü2026-01-06
¡¤ ÖÐÍûÈí¼þÁÁÏàÕã½Æû³µÊýÖÇ»¯Äê»á£¬£¬£¬£¬£¬£¬£¬£¬ÒÔ3D+¸³ÄÜÆû³µÁ㲿¼þÐÐҵתÐÍÉý¼¶2026-01-04
¡¤ ÖÐÍûÈí¼þÓ뽨Áؼ¯ÍŸ濢սÂÔÏàÖú£¡¹²ÆôÎÀ³øÐÐÒµÊý×Ö»¯Ñз¢ÐÂÕ÷³Ì2026-01-04
¡¤ ÖÐÍûCAD 365ÈëÑ¡±ÏÂíÍþ²»¶¯²ú¿Æ¼¼50Ç¿£ºÔÆÔÉúÐͬ£¬£¬£¬£¬£¬£¬£¬£¬ÖØËÜÉè¼ÆÉú²úÁ¦Ð·¶Ê½2025-12-22
¡¤ ÖÐÍûÈí¼þÓë¸ñÁ¦µçÆ÷¸æ¿¢Õ½ÂÔÏàÖú£¬£¬£¬£¬£¬£¬£¬£¬¹²ÖþÖйúÖÆÔìÊý×Ö»¯×ªÐͱê¸Ë2025-12-22
¡¤ ²®ÀÊÌØ»úеÈË£ºCAXÒ»Ìå»¯Æ½Ì¨Í»ÆÆÉè¼Æ±ÚÀÝ£¬£¬£¬£¬£¬£¬£¬£¬¿ªÆôÖÇÄÜÖÆÔìÐÂÆªÕÂ2025-12-17
¡¤ Ä£¾ß¼Ó¹¤20Ä꣬£¬£¬£¬£¬£¬£¬£¬ËûÌìÌì¶¼ÔÚ¡°Ä¥¡±Ê²Ã´£¿£¿£¿£¿£¿£¿£¿2025-12-15
¡¤ÍæÈ¤3D£ºÔõÑùÓ¦ÓÃÖÐÍû3D£¬£¬£¬£¬£¬£¬£¬£¬¿ìËÙÉè¼Æ»ùÕ¾ÌìÏß´«¶¯Âݸˣ¿£¿£¿£¿£¿£¿£¿2022-02-10
¡¤È¤Íæ3D£ºÊ¹ÓÃÖÐÍû3DÉè¼Æ³µ¶¥ÕÊÅñ£¬£¬£¬£¬£¬£¬£¬£¬Îª»§ÍâÐÝÏÐÔöÌíÐÂ×°±¸2021-11-25
¡¤ÏÖ´úÓëÀúÊ·µÄÅöײ£º°¢¸ù͢ѧÉúÓ¦ÓÃÖÐÍû3D£¬£¬£¬£¬£¬£¬£¬£¬ÊÖÒÕÖØÏִ·ÒÆæ¡°·Éµú¡±Ì¹¿ËÔÐÍ2021-09-26
¡¤ÎÒµÄÖ鱦ÈËÉú£ºÎ÷°àÑÀÉè¼ÆÊ¦ÓÃÖÐÍû3DÉè¼Æ»ªÃÀÖ鱦2021-09-26
¡¤9¸öСÃîÕУ¬£¬£¬£¬£¬£¬£¬£¬Çл»ÖÁÖÐÍûCAD¾¹¿ÉÒÔÔÆÔÆË³º¨³©ËÙ 2021-09-06
¡¤ÔÀ´²åÍ·ÊÇÕâÑùÉè¼ÆµÄ£¬£¬£¬£¬£¬£¬£¬£¬¿´ÍêÄãѧ»áÁËÂ𣿣¿£¿£¿£¿£¿£¿2021-09-06
¡¤ÍæÈ¤3D£ºÔõÑùÇÉÓÃÖÐÍû3D 2022й¦Ð§£¬£¬£¬£¬£¬£¬£¬£¬Éè¼Æ×¨ÊôÏà»ú£¿£¿£¿£¿£¿£¿£¿2021-08-10
¡¤CAD¹¤³ÌÊÓͼÔõÑùÏÔʾÇÐÏß2025-05-09
¡¤CADʹÓüüÅÌ¿ÉÒÔ¾ÙÐÐÄÄЩ¿ì½Ý²Ù×÷£¿£¿£¿£¿£¿£¿£¿2021-05-25
¡¤CADΪʲôÌî³äÖ®ºó¿´²»µ½Ìî³ä2018-04-25
¡¤CADÔõÑù»¼¬ÂÖ£¿£¿£¿£¿£¿£¿£¿2022-08-31
¡¤CADÐÞ½¨°æ´òӡͼֽΪʲô²»ÏÔʾÃÅ´°µÈÐÞ½¨¹¤¾ß?2026-03-09
¡¤Àο¿»¡ÔÚCADÖÐÔõô»æÖÆ£¿£¿£¿£¿£¿£¿£¿2020-03-04
¡¤CADÖÐÔõÑù¿ìËÙʹÁ½Ö±ÏßÏཻ2018-04-08
¡¤CADÊäÈëÎÄ×ÖµÄÖÖÖÖÒªÁì2021-06-18

Ãâ·ÑÁìÈ¡30Ì켤»îÂë
ÁªÏµ¿Í·þ
