ʲôÊÇCADÖеÄUCS(Óû§×ø±êϵ)
CADÈí¼þÌṩÁËÒ»¸öÐéÄâµÄ¶þάºÍÈýά¿Õ¼ä£¬£¬£¬£¬£¬£¬£¬Õâ¸ö¿Õ¼äÐèÒªÒ»¸ö»ù×¼£¬£¬£¬£¬£¬£¬£¬Õâ¸ö»ù×¼¾ÍÊÇÌìÏÂ×ø±êϵ£¨WCS£©¡£¡£¡£¡£¡£¡£µ«ÔÚÓÐÐ©ÌØÊâÇéÐÎÏ£¬£¬£¬£¬£¬£¬£¬ÔÚÌìÏÂ×ø±êϵÏ»æÍ¼²¢²»ÊǺÜÀû±ã£¬£¬£¬£¬£¬£¬£¬Òò´ËÓû§»áƾ֤×Ô¼ºµÄÐèÒªÉèÖÃÒ»¸öеIJο¼×ø±êϵ£¬£¬£¬£¬£¬£¬£¬Õâ¸ö×ø±êϵ¾Í½ÐÓû§×ø±êϵ£¨User Coordinate System£©£¬£¬£¬£¬£¬£¬£¬¼ò³ÆÎªUCS¡£¡£¡£¡£¡£¡£ÔÚCADÖÐÊäÈëUCSÏÂÁ£¬£¬£¬£¬£¬£¬¾Í¿ÉÒÔÆ¾Ö¤²î±ðµÄÌõ¼þÉèÖÃÓû§×ø±êϵ£¬£¬£¬£¬£¬£¬£¬Í¨³£ÓÐÏÂÃæ¼¸ÖÖ·½·¨£ºÉèÖÃеÄ×ø±êԵ㣬£¬£¬£¬£¬£¬£¬Ðýתij¸öÖáÏò£¬£¬£¬£¬£¬£¬£¬ÒÔij¸ö¹¤¾ßΪ»ù×¼ÉèÖÃ×ø±êϵ£¬£¬£¬£¬£¬£¬£¬ÒÔÈýάģ×ÓµÄij¸öÃæÀ´½ç˵UCSÀû±ãºóÐø½¨Ä£¡£¡£¡£¡£¡£¡£ÏÂÃæ¸ø¸÷ÈËÏÈÈݼ¸ÖÖUCS×ø±êϵµÄÓ¦Óᣡ£¡£¡£¡£¡£
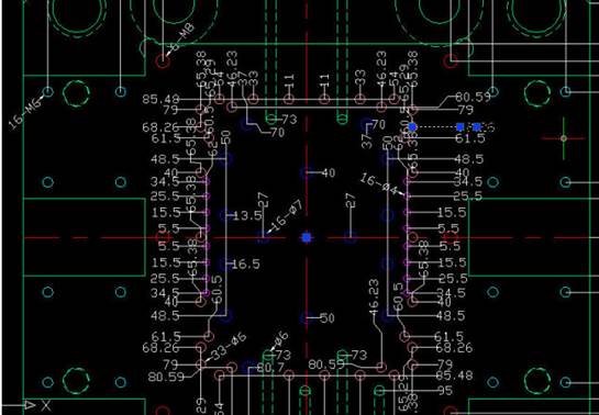
Ò»¡¢µ÷½â×ø±êԵ㣬£¬£¬£¬£¬£¬£¬Àû±ã¾ÙÐÐ×ø±ê±ê×¢
ÔÚһЩ»úеÁã¼þͼֽÖлáÓдó×ڵĿ׻òÆäËûͼÐÎÌØÕ÷£¬£¬£¬£¬£¬£¬£¬Éè¼ÆÖ°Ô±Í¨³£µÄ×ö·¨ÊÇÔÚͼÐÎÖÐÈ·¶¨Ò»¸ö»ùµã£¬£¬£¬£¬£¬£¬£¬½«UCSÔµãµ÷½âµ½»ùµã´¦£¬£¬£¬£¬£¬£¬£¬È»ºóʹÓÃ×ø±ê±ê×¢À´¾ÙÐгߴç±ê×¢¡£¡£¡£¡£¡£¡£ÈôÊÇÍŽáÒ»Á¬±ê×¢£¬£¬£¬£¬£¬£¬£¬±ê×¢»á·Ç³£¿£¿£¿£¿£¿ì£¬£¬£¬£¬£¬£¬£¬²¢ÇÒÍ¼ÃæÒ²ºÜÕûÆë£¬£¬£¬£¬£¬£¬£¬ÈçÏÂͼËùʾ¡£¡£¡£¡£¡£¡£

ÔÚÉÏͼÖпÉÒÔ¿´µ½UCS×ø±êԵ㱻¶¨Îªµ½ÖÐÐÄÏߵĽ»µã´¦£¬£¬£¬£¬£¬£¬£¬ËäȻҲ¿ÉÒÔ½«Í¼ÐÎÕûÌåÒÆ¶¯£¬£¬£¬£¬£¬£¬£¬ÈÃÖÐÐÄÏߵĽ»µãÕýºÃλÓÚÌìÏÂ×ø±êϵµÄԵ㣬£¬£¬£¬£¬£¬£¬µ«ÈôÊÇÒ»ÕÅͼֽÖÐÓжà¸öÁã¼þͼÐξÍÖ»ÄÜÓÃUCSÁË¡£¡£¡£¡£¡£¡£
¶þ¡¢µ÷½â×ø±êÆ«Ïò£¬£¬£¬£¬£¬£¬£¬Àû±ã»æÖÆÇãбͼֽ
Ò»Ð©Ð¡ÇøºÍÊÐÕþÍýÏëͼÊÇÇãбµÄ£¬£¬£¬£¬£¬£¬£¬ÈçÏÂͼËùʾ¡£¡£¡£¡£¡£¡£

ÔÚͼֽÇãб״̬ϾÙÐлæÍ¼»ò³öͼ¶¼ºÜ²»Àû±ã£¬£¬£¬£¬£¬£¬£¬Òò´Ëͨ³£»£»£»£»£»á½«×ø±êϵ¾ÙÐÐÐýת£¬£¬£¬£¬£¬£¬£¬½«Í¼ÐÎת³ÉÕýÏò¡£¡£¡£¡£¡£¡£»£»£»£»£»ù±¾²Ù×÷ÒªÁìÈçÏ£º
1¡¢ÊäÈëUCSÏÂÁ£¬£¬£¬£¬£¬£¬»Ø³µ¡£¡£¡£¡£¡£¡£
2¡¢ÊäÈëZÑ¡Ï£¬£¬£¬£¬£¬£¬ÊäÈëÐèÒªÐýתµÄ½Ç¶È£¬£¬£¬£¬£¬£¬£¬½«UCSÑØZÖÜÐýתһ¶¨½Ç¶È¡£¡£¡£¡£¡£¡£
3¡¢ÊäÈëPLANÏÂÁ£¬£¬£¬£¬£¬£¬»Ø³µ£¬£¬£¬£¬£¬£¬£¬½«ÊÓͼÇл»ÎªUCSµÄÆ½ÃæÊÓͼ£¬£¬£¬£¬£¬£¬£¬ÈçÏÂͼËùʾ¡£¡£¡£¡£¡£¡£

ÍÆ¼öÔĶÁ£º»úеCAD
ÍÆ¼öÔĶÁ£ºCADÖв»ÅÌËã±ÈÀýÖµÔõÑùƾ֤¾àÀëÖ±½Ó¿ìËÙËõ·Å
¡¤Ãâ·ÑÁì90Å·ÔªÃÅÆ±£üÖÐÍûÑûÄú¹²¸°ººÅµÍþ£º¹²¼û¹¤ÒµÊý×Ö»¯µÄÈ«Çòͼ¾°2026-02-05
¡¤ ²ú½ÌÈÚºÏÐÂʵ¼ù£ºÖÐÍûЯÊÖ¸»ÁÙ¾«¹¤¼°´¨ÄÚ¸ßУ¾ÙÐÐÊ׽조׿Խ¹¤³Ìʦ±¡±Éè¼Æ´óÈü2026-01-06
¡¤ ÖÐÍûÈí¼þÁÁÏàÕã½Æû³µÊýÖÇ»¯Äê»á£¬£¬£¬£¬£¬£¬£¬ÒÔ3D+¸³ÄÜÆû³µÁ㲿¼þÐÐҵתÐÍÉý¼¶2026-01-04
¡¤ ÖÐÍûÈí¼þÓ뽨Áؼ¯ÍŸ濢սÂÔÏàÖú£¡¹²ÆôÎÀ³øÐÐÒµÊý×Ö»¯Ñз¢ÐÂÕ÷³Ì2026-01-04
¡¤ ÖÐÍûCAD 365ÈëÑ¡±ÏÂíÍþ²»¶¯²ú¿Æ¼¼50Ç¿£ºÔÆÔÉúÐͬ£¬£¬£¬£¬£¬£¬£¬ÖØËÜÉè¼ÆÉú²úÁ¦Ð·¶Ê½2025-12-22
¡¤ ÖÐÍûÈí¼þÓë¸ñÁ¦µçÆ÷¸æ¿¢Õ½ÂÔÏàÖú£¬£¬£¬£¬£¬£¬£¬¹²ÖþÖйúÖÆÔìÊý×Ö»¯×ªÐͱê¸Ë2025-12-22
¡¤ ²®ÀÊÌØ»úеÈË£ºCAXÒ»Ìå»¯Æ½Ì¨Í»ÆÆÉè¼Æ±ÚÀÝ£¬£¬£¬£¬£¬£¬£¬¿ªÆôÖÇÄÜÖÆÔìÐÂÆªÕÂ2025-12-17
¡¤ Ä£¾ß¼Ó¹¤20Ä꣬£¬£¬£¬£¬£¬£¬ËûÌìÌì¶¼ÔÚ¡°Ä¥¡±Ê²Ã´£¿£¿£¿£¿£¿2025-12-15
¡¤ÍæÈ¤3D£ºÔõÑùÓ¦ÓÃÖÐÍû3D£¬£¬£¬£¬£¬£¬£¬¿ìËÙÉè¼Æ»ùÕ¾ÌìÏß´«¶¯Âݸˣ¿£¿£¿£¿£¿2022-02-10
¡¤È¤Íæ3D£ºÊ¹ÓÃÖÐÍû3DÉè¼Æ³µ¶¥ÕÊÅñ£¬£¬£¬£¬£¬£¬£¬Îª»§ÍâÐÝÏÐÔöÌíÐÂ×°±¸2021-11-25
¡¤ÏÖ´úÓëÀúÊ·µÄÅöײ£º°¢¸ù͢ѧÉúÓ¦ÓÃÖÐÍû3D£¬£¬£¬£¬£¬£¬£¬ÊÖÒÕÖØÏִ·ÒÆæ¡°·Éµú¡±Ì¹¿ËÔÐÍ2021-09-26
¡¤ÎÒµÄÖ鱦ÈËÉú£ºÎ÷°àÑÀÉè¼ÆÊ¦ÓÃÖÐÍû3DÉè¼Æ»ªÃÀÖ鱦2021-09-26
¡¤9¸öСÃîÕУ¬£¬£¬£¬£¬£¬£¬Çл»ÖÁÖÐÍûCAD¾¹¿ÉÒÔÔÆÔÆË³º¨³©ËÙ 2021-09-06
¡¤ÔÀ´²åÍ·ÊÇÕâÑùÉè¼ÆµÄ£¬£¬£¬£¬£¬£¬£¬¿´ÍêÄãѧ»áÁËÂ𣿣¿£¿£¿£¿2021-09-06
¡¤ÍæÈ¤3D£ºÔõÑùÇÉÓÃÖÐÍû3D 2022й¦Ð§£¬£¬£¬£¬£¬£¬£¬Éè¼Æ×¨ÊôÏà»ú£¿£¿£¿£¿£¿2021-08-10
¡¤ÔÚCADÖÐÉèÖÃ×Ô¶¯Ìæ»»×ÖÌåµÄÁ½ÖÖÒªÁì2023-02-21
¡¤CAD»æÖÆÆ½»¬µÄÆ½ÃæÇúÏßÓë¿Õ¼äÇúÏß2017-08-07
¡¤CADÔõÑùÒÆ¶¯¸´ÖÆ£¿£¿£¿£¿£¿2022-05-05
¡¤CADÔõô»½Ç¶È2016-02-25
¡¤CAD½¨Éèд¿éͼ±ê°´Å¥µÄ°ì·¨2022-07-15
¡¤CADÔõÑùÊä³öPDF¶àÒ³Îļþ2025-07-22
¡¤CAD³£ÓõÄÈýÖÖÐÞ¼ô·½·¨2022-08-26
¡¤CADÔÚδÊÚȨ״̬ÔõÑùÉúÑÄͼֽ£¿£¿£¿£¿£¿2024-05-07

Ãâ·ÑÁìÈ¡30Ì켤»îÂë
ÁªÏµ¿Í·þ
