CADˮϴËþ¾»»¯¹¤³ÌÉè¼Æ°¸Àý·ÖÏí
ÏÖÔÚÐí¶à¹¤Òµ·½ÃæµÄÊ©¹¤Æ½ÃæÍ¼¶¼ÊÇ¿ÉÒÔÓÃCADÀ´ÊµÏֵ쬣¬£¬£¬£¬£¬£¬£¬ÀýÈç£ºÖØ¹¤ÒµÐÐÒµµÄ³ý³¾¡¢¾»»¯¡¢Í¸·ç¡¢ÖÐÑë¿Õµ÷µÈ£¬£¬£¬£¬£¬£¬£¬£¬ÏÂÃæÎª¸÷ÈË·ÖÏíÒ»¸ö¹¤Òµµ±Öг£¼ûµÄˮϴËþ¾»»¯¹¤³ÌµÄ°¸Àý¡£¡£¡£¡£¡£¡£
ÔÚ³ý³¾ÁìÓòµ±ÖУ¬£¬£¬£¬£¬£¬£¬£¬Ë®Ï´ËþµÄ³ý³¾Ð§¹ûÒ²ÊǺÜÊÇ»£»£»£»£»£»£»·±£µÄ£¬£¬£¬£¬£¬£¬£¬£¬Ëü½ÏÁ¿ÊʺÏСÐ͵ijµ¼ä¾»»¯Ê¹Ó㬣¬£¬£¬£¬£¬£¬£¬ÔÚÐÐÒµÖдóÃæ»ýµÄ¾»»¯Ò»Ñùƽ³£¶¼ÊǽÓÄÉÆäËü¸ü´óÐ͵ľ»»¯×±ÖÃÀ´×öΪÖ÷»ú£¬£¬£¬£¬£¬£¬£¬£¬ÕâÑù²Å»ªµÖ´ï¸üºÃµÄЧ¹û¡£¡£¡£¡£¡£¡£

ÔÚÕâ¸öÐÐÒµÖУ¬£¬£¬£¬£¬£¬£¬£¬ÈôÊÇÄãÏëÒªÉè¼Æ³öÕâôһÌ×¾»»¯¼Æ»®³öÀ´µÄ»°£¬£¬£¬£¬£¬£¬£¬£¬Ê×ÏÈ£¬£¬£¬£¬£¬£¬£¬£¬Äã±ØÐèÒª¶Ô¹¤Òµ¾»»¯ÔÀíºÍ×°±¸µÄʹÓÃÌØµãÓÐÒ»¶¨µÄÏàʶ²Å»ª×öµ½£¬£¬£¬£¬£¬£¬£¬£¬Òª²»È»µÄ»°£¬£¬£¬£¬£¬£¬£¬£¬ÄãÎÞ·¨ÀֳɵÄÉè¼Æ³öÒ»Ì׺ÏÀíµÄÉè¼Æ¼Æ»®£»£»£»£»£»£»£»×Åʵ£¬£¬£¬£¬£¬£¬£¬£¬ÕâºÍÿ¸öÐÐÒµµÄCADÉè¼Æ¶¼ÊÇÓйØÏµµÄ£¬£¬£¬£¬£¬£¬£¬£¬ÈôÊÇÄãÊÇÊÒÄÚÉè¼ÆµÄ£¬£¬£¬£¬£¬£¬£¬£¬ÄãÒ»¶¨Ò²ÊÇÒª¶Ô¼Ò¾ÓµÄ°Ú·ÅÒÔ¼°×°ÐÞÓÐÒ»µãµÄÏàʶ£¬£¬£¬£¬£¬£¬£¬£¬²»¹ÜÄã´ÓÊÂÄÄÒ»ÐÐÒµµÄÉè¼Æ£¬£¬£¬£¬£¬£¬£¬£¬¶Ô×Ô¼ºÉè¼ÆÐÐÒµµÄÏàʶÊDZØÐ޿Ρ£¡£¡£¡£¡£¡£
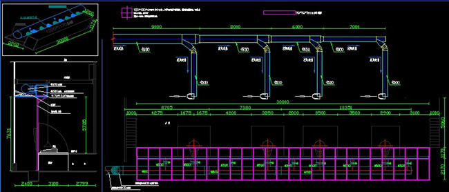
½ñÌìÕâ¸ö°¸ÀýÖ÷ÒªÊǽ²µÃÊÇÒ»¸ö¹¤ÒµÈÜ»¯Â¯³µ¼äµÄ¿ÕÆø¾»»¯ÏµÍ³£¬£¬£¬£¬£¬£¬£¬£¬ËüÖ÷ÒªµÄ¹¦Ð§¾ÍÊÇʹ³µ¼ä×°±¸±¬·¢µÄÓж¾»òÕßÓÐÎÛȾµÄÆøÌå¾ÙÐо»»¯ÅÅ·Å£¬£¬£¬£¬£¬£¬£¬£¬µÖ´ï»·±£µÄÄ¿µÄ¡£¡£¡£¡£¡£¡£

Éè¼ÆËùÐèÔªËØ£º
Ò»¡¢Ö÷Ìå×°±¸£¨³é·ç»ú+ˮϴËþ£©
ÒªÏëÈÃÄÚÀïµÄÓк¦¿ÕÆø³öÀ´£¬£¬£¬£¬£¬£¬£¬£¬Ê×ÏÈÒªÓиö³é·ç»ú£¬£¬£¬£¬£¬£¬£¬£¬¼´ÐÐҵרҵ½Ð·¨¡°ÀëÐijé·ç»ú¡±£¬£¬£¬£¬£¬£¬£¬£¬È»ºó¾Óɳé·ç»úºóÔÙ½ÓÈë»·±£Ë®Ï´Ëþ£¬£¬£¬£¬£¬£¬£¬£¬ÕâÑùËùÇãÔþÀ´µÄ¿ÕÆø²ÅËãÊÇ»·±£µÄ¡£¡£¡£¡£¡£¡£

¶þ¡¢³é·ç¹ÜµÀ
¿ÕÆøÊÇÆøÌåÎïÖÊ£¬£¬£¬£¬£¬£¬£¬£¬ÒªÏëÊä³ö£¬£¬£¬£¬£¬£¬£¬£¬Ò»¶¨±ØÐèµÃÓйܵÀ²ÅÐУ¬£¬£¬£¬£¬£¬£¬£¬ÖÁÓÚÕâ¸ö¹ÜµÀÊǽÓÄÉʲô²ÄÖÊÀ´Éè¼ÆÒ»Ñùƽ³£ÊÇÐèҪƾ֤¿Í»§µÄÒªÇóµÄ£¬£¬£¬£¬£¬£¬£¬£¬Ö÷ÒªÓжÆÐ¿°å²ÄºÍ²»Ðâ¸Ö°å²ÄÁ½ÖÖ¡£¡£¡£¡£¡£¡£
Èý¡¢ÎüÑÌÕÖ
Õâ¸öÔÚ³é·çϵͳÖÐÒÔ²î±ðµÄ½ÇÉ«·ºÆð£¬£¬£¬£¬£¬£¬£¬£¬Ò»Ñùƽ³£Ã»Óл®¶¨£¬£¬£¬£¬£¬£¬£¬£¬Ö÷Ҫƾ֤ÏÖ³¡¶ø¶¨£¬£¬£¬£¬£¬£¬£¬£¬ÏñÕâ¸ö¹¤³Ì°¸Àý£¬£¬£¬£¬£¬£¬£¬£¬Ëü¾Í½ÏÁ¿ÊÊÊÊÓóé·çÕÖÈ¥¾ÙÐм¯Æø¡£¡£¡£¡£¡£¡£
ÒÔÉϾÍÊÇˮϴËþ¾»»¯¹¤³ÌµÄÆ½ÃæÍ¼»æÖƵļƻ®£¬£¬£¬£¬£¬£¬£¬£¬Ï£Íû¸÷È˵Äϲ»¶¡£¡£¡£¡£¡£¡£
ÍÆ¼öÔĶÁ£ºCADÖÆÍ¼³õѧÈëÃÅ
ÍÆ¼öÔĶÁ£º3D´òÓ¡»ú
¡¤Ãâ·ÑÁì90Å·ÔªÃÅÆ±£üÖÐÍûÑûÄú¹²¸°ººÅµÍþ£º¹²¼û¹¤ÒµÊý×Ö»¯µÄÈ«Çòͼ¾°2026-02-05
¡¤ ²ú½ÌÈÚºÏÐÂʵ¼ù£ºÖÐÍûЯÊÖ¸»ÁÙ¾«¹¤¼°´¨ÄÚ¸ßУ¾ÙÐÐÊ׽조׿Խ¹¤³Ìʦ±¡±Éè¼Æ´óÈü2026-01-06
¡¤ ÖÐÍûÈí¼þÁÁÏàÕã½Æû³µÊýÖÇ»¯Äê»á£¬£¬£¬£¬£¬£¬£¬£¬ÒÔ3D+¸³ÄÜÆû³µÁ㲿¼þÐÐҵתÐÍÉý¼¶2026-01-04
¡¤ ÖÐÍûÈí¼þÓ뽨Áؼ¯ÍŸ濢սÂÔÏàÖú£¡¹²ÆôÎÀ³øÐÐÒµÊý×Ö»¯Ñз¢ÐÂÕ÷³Ì2026-01-04
¡¤ ÖÐÍûCAD 365ÈëÑ¡±ÏÂíÍþ²»¶¯²ú¿Æ¼¼50Ç¿£ºÔÆÔÉúÐͬ£¬£¬£¬£¬£¬£¬£¬£¬ÖØËÜÉè¼ÆÉú²úÁ¦Ð·¶Ê½2025-12-22
¡¤ ÖÐÍûÈí¼þÓë¸ñÁ¦µçÆ÷¸æ¿¢Õ½ÂÔÏàÖú£¬£¬£¬£¬£¬£¬£¬£¬¹²ÖþÖйúÖÆÔìÊý×Ö»¯×ªÐͱê¸Ë2025-12-22
¡¤ ²®ÀÊÌØ»úеÈË£ºCAXÒ»Ìå»¯Æ½Ì¨Í»ÆÆÉè¼Æ±ÚÀÝ£¬£¬£¬£¬£¬£¬£¬£¬¿ªÆôÖÇÄÜÖÆÔìÐÂÆªÕÂ2025-12-17
¡¤ Ä£¾ß¼Ó¹¤20Ä꣬£¬£¬£¬£¬£¬£¬£¬ËûÌìÌì¶¼ÔÚ¡°Ä¥¡±Ê²Ã´£¿£¿£¿£¿£¿£¿£¿£¿2025-12-15
¡¤ÍæÈ¤3D£ºÔõÑùÓ¦ÓÃÖÐÍû3D£¬£¬£¬£¬£¬£¬£¬£¬¿ìËÙÉè¼Æ»ùÕ¾ÌìÏß´«¶¯Âݸˣ¿£¿£¿£¿£¿£¿£¿£¿2022-02-10
¡¤È¤Íæ3D£ºÊ¹ÓÃÖÐÍû3DÉè¼Æ³µ¶¥ÕÊÅñ£¬£¬£¬£¬£¬£¬£¬£¬Îª»§ÍâÐÝÏÐÔöÌíÐÂ×°±¸2021-11-25
¡¤ÏÖ´úÓëÀúÊ·µÄÅöײ£º°¢¸ù͢ѧÉúÓ¦ÓÃÖÐÍû3D£¬£¬£¬£¬£¬£¬£¬£¬ÊÖÒÕÖØÏִ·ÒÆæ¡°·Éµú¡±Ì¹¿ËÔÐÍ2021-09-26
¡¤ÎÒµÄÖ鱦ÈËÉú£ºÎ÷°àÑÀÉè¼ÆÊ¦ÓÃÖÐÍû3DÉè¼Æ»ªÃÀÖ鱦2021-09-26
¡¤9¸öСÃîÕУ¬£¬£¬£¬£¬£¬£¬£¬Çл»ÖÁÖÐÍûCAD¾¹¿ÉÒÔÔÆÔÆË³º¨³©ËÙ 2021-09-06
¡¤ÔÀ´²åÍ·ÊÇÕâÑùÉè¼ÆµÄ£¬£¬£¬£¬£¬£¬£¬£¬¿´ÍêÄãѧ»áÁËÂ𣿣¿£¿£¿£¿£¿£¿£¿2021-09-06
¡¤ÍæÈ¤3D£ºÔõÑùÇÉÓÃÖÐÍû3D 2022й¦Ð§£¬£¬£¬£¬£¬£¬£¬£¬Éè¼Æ×¨ÊôÏà»ú£¿£¿£¿£¿£¿£¿£¿£¿2021-08-10
¡¤CADÈýά½¨Ä£ÏÂÁî¿ì½Ý¼ü2020-03-03
¡¤CAD»úе°æÓÐЩ¿ì½Ý¼ü·×ÆçÑùÊÇΪʲô 2025-09-22
¡¤CADÔõÑùÔÚ½¨Éè¿é֮ǰ±à¼¿éµÄÊôÐÔ2021-02-03
¡¤ÔÚCADÖÐÔõÑù»æÖÆ¿ÕÆø¾»»¯Æ÷2022-01-21
¡¤CAD»Õý·½ÐÎÄÚ½ÓÔ²µÄÒªÁì2021-11-05
¡¤CADÎÄ×ÖÔõÑù·ÖÀ¸2025-08-12
¡¤ÔÚWin11ϵͳÉÏÔõÑù¿ªÆôCADµÄÓ²¼þ¼ÓËÙ¹¦Ð§£¿£¿£¿£¿£¿£¿£¿£¿2024-01-03

Ãâ·ÑÁìÈ¡30Ì켤»îÂë
ÁªÏµ¿Í·þ
