CADÔڽṹÊÓͼÖÐÔõÃ´ÒÆ¶¯Í¼ÐÎ
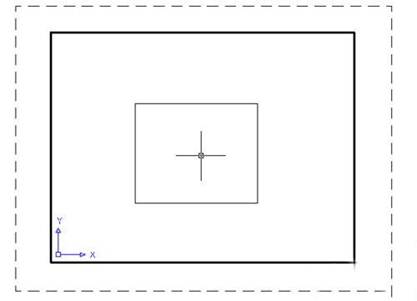
CADÔڽṹÊÓͼÖÐÔõÃ´ÒÆ¶¯Í¼ÐΣ¿£¿£¿£¿£¿£¿CADÖÆÍ¼µÄʱ¼ä£¬£¬£¬£¬£¬£¬ÔڽṹÊÓͼÖУ¬£¬£¬£¬£¬£¬¿ÉÒÔÇл»¡¾Í¼Ö½¡¿¡¢¡¾Ä£×Ó¡¿£¬£¬£¬£¬£¬£¬È·¶¨Í¼ÐÎÔÚͼֽÉϵÄÏà¶ÔλÖú󣬣¬£¬£¬£¬£¬ÎÒÃÇ¿ÉÒÔÔڽṹÊÓͼÖÐͨ¹ýÒÆ¶¯¹¦Ð§¾ÙÐе÷½âͼÐΣ¬£¬£¬£¬£¬£¬¸ÃÔõô²Ù×÷ÄØ£¿£¿£¿£¿£¿£¿ÏÂÃæÎÒÃÇÀ´¿´¿´ÏêϸµÄ½Ì³Ì¡£¡£¡£¡£¡£¡£
1¡¢·¿ªCADµÄÒ³Ãæ£¬£¬£¬£¬£¬£¬Çл»ÖÁ¡¾½á¹¹1¡¿ÊÓͼ£¬£¬£¬£¬£¬£¬Ä¿½ñΪ¡¾½á¹¹1¡¿ÊÓͼ£¬£¬£¬£¬£¬£¬

2¡¢´ËʱΪ¡¾Í¼Ö½¡¿¿Õ¼ä£¬£¬£¬£¬£¬£¬µã»÷¡¾Í¼Ö½¡¿Çл»ÖÁ¡¾Ä£×Ó¡¿¡£¡£¡£¡£¡£¡£ÔÚ¡¾Ä£×Ó¡¿¿Õ¼äÏ»һ¸ö¾ØÐΣ¬£¬£¬£¬£¬£¬Í¨¹ý¸Ã¾ØÐÎÀ´ËµÃ÷¡¾Í¼Ö½¡¿Ó롾ģ×Ó¡¿¿Õ¼äµÄÇø±ð¡£¡£¡£¡£¡£¡£

3¡¢½«Ê®×ÖÖ¸ÕëÖÃÓÚ¾ØÐÎÄÚÀҲ¿ÉÖÃÓÚÍâÃæ£©£¬£¬£¬£¬£¬£¬È»ºó»¬¶¯¹öÂÖ£¬£¬£¬£¬£¬£¬·¢Ã÷¾ØÐαä´ó»òËõСÁË£¬£¬£¬£¬£¬£¬·Å´óµ½Áè¼Ý´ÖÏß¿òʱ£¬£¬£¬£¬£¬£¬Áè¼Ý²¿·Ö²»ÏÔʾ¡£¡£¡£¡£¡£¡£¸Ã´ÖÏß¿ò³ÆÎª¡¾ÊÓ¿Ú¡¿£¬£¬£¬£¬£¬£¬¿Éͨ¹ý²Ëµ¥À¸¡¾ÊÓͼ¡¿¡ª¡ª¡¾ÊÓ¿Ú¡¿Ð½¨£¬£¬£¬£¬£¬£¬ËüÏÞÖÆÖÆÍ¼µÄ¹æÄ££¬£¬£¬£¬£¬£¬Áè¼Ý²¿·Ö²»ÏÔʾ¡£¡£¡£¡£¡£¡£Áí£¬£¬£¬£¬£¬£¬´ËʱµÄ¾ØÐÎÊÇ¿ÉÑ¡Öв¢¿É±à¼µÄ¡£¡£¡£¡£¡£¡£

4¡¢ÔÙÇл»ÖÁ¡¾Í¼Ö½¡¿£¬£¬£¬£¬£¬£¬»¬¶¯¹öÂÖ£¬£¬£¬£¬£¬£¬·¢Ã÷Ò³ÃæËõС»ò·Å´óÁË¡£¡£¡£¡£¡£¡£´Ëʱ£¬£¬£¬£¬£¬£¬¸Ã¾ØÐÎÊDz»¿ÉÑ¡Öм°±à¼µÄ£»£»£»£»£»ÊÓ¿ÚÔò¿É±à¼¡£¡£¡£¡£¡£¡£ÏàËÆµÄ£¬£¬£¬£¬£¬£¬ÔÚ¡¾Í¼Ö½¡¿ÏµĻæ»ÔÚ¡¾Ä£×Ó¡¿ÏÂÊDz»¿ÉÑ¡Öм°±à¼µÄ¡£¡£¡£¡£¡£¡£

5¡¢Í¨¹ýÕâÁ½ÖÖģʽµÄÌØÕ÷£¬£¬£¬£¬£¬£¬ÔÚ»æ»Ê±ÊÊʱת»»£¬£¬£¬£¬£¬£¬ºÃ±ÈÔÚ¡¾Ä£×Ó¡¿Ï¾ÙÐÐÖÆÍ¼£¬£¬£¬£¬£¬£¬ÔÚ¡¾Í¼Ö½¡¿Ï¾ÙÐзÅËõ£¬£¬£¬£¬£¬£¬×èֹͼÐεÄÒÆÎ»¼°·ÅËõ¡£¡£¡£¡£¡£¡£Í¼ÐεÄÒÆ¶¯¿Éͨ¹ýÓÒ·½¹¤¾ßÌõÖеġ¾Òƶ¯¡¿À´¾ÙÐС£¡£¡£¡£¡£¡£
6¡¢ÏÈÑ¡ÖÐÄãÒªÒÆ¶¯µÄͼÐΣ¬£¬£¬£¬£¬£¬È»ºóµã»÷¡¾Òƶ¯¡¿¡£¡£¡£¡£¡£¡£Í¬Ê±¿É½«Ï·½µÄ¡¾¹¤¾ß²¶»ñ¡¿·¿ª£¬£¬£¬£¬£¬£¬´Ëʱ½«Ö¸ÕëÒÆÖÁͼÐαßÉÏ£¬£¬£¬£¬£¬£¬ÓÐСÕý·½ÐΣ¨»òÈý½ÇÐλò©¶·ÐΣ©·ºÆð£¬£¬£¬£¬£¬£¬×ó¼üµã»÷£¬£¬£¬£¬£¬£¬ÔÙÒÆ¶¯Ê±·¢Ã÷ͼÐÎËæ×ÅÖ¸ÕëÒÆ¶¯ÁË£¬£¬£¬£¬£¬£¬µ±È·ÈϺÃÒÆ¶¯×îÖÕλÖÃʱ£¬£¬£¬£¬£¬£¬Ôٴεã»÷£¬£¬£¬£¬£¬£¬Í¼ÐÎÒÆ¶¯Àֳɡ£¡£¡£¡£¡£¡£

ÍÆ¼öÔĶÁ£ºCAD¸´ÖÆ¿ì½Ý¼ü
ÍÆ¼öÔĶÁ£ºÖ±¾¶·ûºÅÔõô´ò
¡¤Ãâ·ÑÁì90Å·ÔªÃÅÆ±£üÖÐÍûÑûÄú¹²¸°ººÅµÍþ£º¹²¼û¹¤ÒµÊý×Ö»¯µÄÈ«Çòͼ¾°2026-02-05
¡¤ ²ú½ÌÈÚºÏÐÂʵ¼ù£ºÖÐÍûЯÊÖ¸»ÁÙ¾«¹¤¼°´¨ÄÚ¸ßУ¾ÙÐÐÊ׽조׿Խ¹¤³Ìʦ±¡±Éè¼Æ´óÈü2026-01-06
¡¤ ÖÐÍûÈí¼þÁÁÏàÕã½Æû³µÊýÖÇ»¯Äê»á£¬£¬£¬£¬£¬£¬ÒÔ3D+¸³ÄÜÆû³µÁ㲿¼þÐÐҵתÐÍÉý¼¶2026-01-04
¡¤ ÖÐÍûÈí¼þÓ뽨Áؼ¯ÍŸ濢սÂÔÏàÖú£¡¹²ÆôÎÀ³øÐÐÒµÊý×Ö»¯Ñз¢ÐÂÕ÷³Ì2026-01-04
¡¤ ÖÐÍûCAD 365ÈëÑ¡±ÏÂíÍþ²»¶¯²ú¿Æ¼¼50Ç¿£ºÔÆÔÉúÐͬ£¬£¬£¬£¬£¬£¬ÖØËÜÉè¼ÆÉú²úÁ¦Ð·¶Ê½2025-12-22
¡¤ ÖÐÍûÈí¼þÓë¸ñÁ¦µçÆ÷¸æ¿¢Õ½ÂÔÏàÖú£¬£¬£¬£¬£¬£¬¹²ÖþÖйúÖÆÔìÊý×Ö»¯×ªÐͱê¸Ë2025-12-22
¡¤ ²®ÀÊÌØ»úеÈË£ºCAXÒ»Ìå»¯Æ½Ì¨Í»ÆÆÉè¼Æ±ÚÀÝ£¬£¬£¬£¬£¬£¬¿ªÆôÖÇÄÜÖÆÔìÐÂÆªÕÂ2025-12-17
¡¤ Ä£¾ß¼Ó¹¤20Ä꣬£¬£¬£¬£¬£¬ËûÌìÌì¶¼ÔÚ¡°Ä¥¡±Ê²Ã´£¿£¿£¿£¿£¿£¿2025-12-15
¡¤ÍæÈ¤3D£ºÔõÑùÓ¦ÓÃÖÐÍû3D£¬£¬£¬£¬£¬£¬¿ìËÙÉè¼Æ»ùÕ¾ÌìÏß´«¶¯Âݸˣ¿£¿£¿£¿£¿£¿2022-02-10
¡¤È¤Íæ3D£ºÊ¹ÓÃÖÐÍû3DÉè¼Æ³µ¶¥ÕÊÅñ£¬£¬£¬£¬£¬£¬Îª»§ÍâÐÝÏÐÔöÌíÐÂ×°±¸2021-11-25
¡¤ÏÖ´úÓëÀúÊ·µÄÅöײ£º°¢¸ù͢ѧÉúÓ¦ÓÃÖÐÍû3D£¬£¬£¬£¬£¬£¬ÊÖÒÕÖØÏִ·ÒÆæ¡°·Éµú¡±Ì¹¿ËÔÐÍ2021-09-26
¡¤ÎÒµÄÖ鱦ÈËÉú£ºÎ÷°àÑÀÉè¼ÆÊ¦ÓÃÖÐÍû3DÉè¼Æ»ªÃÀÖ鱦2021-09-26
¡¤9¸öСÃîÕУ¬£¬£¬£¬£¬£¬Çл»ÖÁÖÐÍûCAD¾¹¿ÉÒÔÔÆÔÆË³º¨³©ËÙ 2021-09-06
¡¤ÔÀ´²åÍ·ÊÇÕâÑùÉè¼ÆµÄ£¬£¬£¬£¬£¬£¬¿´ÍêÄãѧ»áÁËÂ𣿣¿£¿£¿£¿£¿2021-09-06
¡¤ÍæÈ¤3D£ºÔõÑùÇÉÓÃÖÐÍû3D 2022й¦Ð§£¬£¬£¬£¬£¬£¬Éè¼Æ×¨ÊôÏà»ú£¿£¿£¿£¿£¿£¿2021-08-10
¡¤CADÔõÑù»³öÒ»¸ö¿ÕÐĺÅÅÆÄØ£¿£¿£¿£¿£¿£¿2022-08-25
¡¤CADÖÐÔõÑùͬʱѡÖÐÒ»¸öͼ²ãµÄÄÚÈÝ2017-06-30
¡¤ÔõÑù½«ÐÞ¶©ÔÆÏß¾ÙÐз´×ª2023-09-07
¡¤CADÖÐÔõÑùʹÓÃʵÌåµÄ²¢¼¯¡¢²î¼¯ºÍ½»¼¯2021-03-04
¡¤CADÖ´ÐÐÖØ¸´ÏÂÁîÓÐÄÄЩҪÁì2021-11-19
¡¤CADʹÓø´ÖÆÖеijäÂúÕóÁз½·¨ÊµÏÖÀο¿³¤¶È¹¤¾ßÖзÖÅÌËãµÄÒªÁì2024-08-08
¡¤ÔÚCADÖÐÁ½¸ö±ê×¢µÄÑùʽÏàͬ¿ÉÊÇÏÔʾ²î±ð2017-06-09
¡¤ÐÞ½¨CAD³£Óÿì½Ý¼ü2020-02-26

Ãâ·ÑÁìÈ¡30Ì켤»îÂë
ÁªÏµ¿Í·þ
