¡¾ÑùÌõÇúÏß¡¿ÊǾ³£ÓÃÀ´ÌåÏÖ»úÐµÖÆÍ¼ÖзֶÏÃæµÄ²¿·Ö£¬£¬£¬£¬£¬»¹¿ÉÒÔÔÚÐÞ½¨Í¼ÖÐÌåÏÖµØÐεØÃ²µÈ¡£¡£¡£¡£¡£Æô¶¯¡¾ÑùÌõÇúÏß¡¿ÏÂÁîµÄ·½·¨ÓÐÒÔϵļ¸ÖÖ¡£¡£¡£¡£¡£
1.ÏÂÁîÐУºÊäÈëSPLINE/SPLÏÂÁî
2.²Ëµ¥À¸£ºÑ¡Ôñ¡¾»æÍ¼¡¿--¡¾ÑùÌõÇúÏß¡¿²Ëµ¥ÏÂÁî
3.¹¤¾ßÀ¸£ºµ¥»÷¹¤¾ßÀ¸Öеġ¾ÑùÌõÇúÏß¡¿Í¼±ê 
ÏÂÃæÎÒÃǾٸöÀý×Ó£¬£¬£¬£¬£¬ÎÒÃǸÃÔõÑù²Ù×÷»æÖÆÑùÌõÇúÏß¡£¡£¡£¡£¡£
1.ÎÒÃÇ·¿ªËز쬣¬£¬£¬£¬

2.ÎÒÃÇÑØ×ÅA-EµÄõè¾¶È¥»æÖÆ23411ÓÀÀûÑùÌõÇúÏß¡£¡£¡£¡£¡£

3.ÎÒÃÇÑ¡ÔÚ¡¾»æÍ¼¡¿--¡¾ÑùÌõÇúÏß¡¿²Ëµ¥ÏÂÁî

4.ÎÒÃÇÍê³É²Ù×÷ʱ£¬£¬£¬£¬£¬ÊÇÈçÏÂͼµÄ¡£¡£¡£¡£¡£

ÔõÑùÈ¥±à¼ÎÒÃÇ»æÖƺõÄÑùÌõÇúÏßÄØ£¿£¿£¿£¿£¿£¿
ÎÒÃÇ¿ÉÒÔ¿´µ½ÎÒÃÇ»æÖƳöÀ´µÄÑùÌõÇúÏß²¢²»ÎǺÏÅԱߵÄÄÇÌõÇúÏß¡£¡£¡£¡£¡£Õâʱ¼äÎÒÃǾͿÉÒÔʹÓÃÑùÌõÇúÏß±à¼ÏÂÁî¶Ô23411ÓÀÀûÇúÏß¾ÙÐб༣¬£¬£¬£¬£¬Ò컯µÄÇкÏÎÒÃÇÐèÒªµÄÑùÌõÇúÏß¡£¡£¡£¡£¡£
Æô¶¯¡¾±à¼ÑùÌõÇúÏß¡¿ÏÂÁîµÄ·½·¨ÓÐÒÔϼ¸ÖÖ¡£¡£¡£¡£¡£
1.ÏÂÁîÐУºÊäÈëSPLINEDIT/SPEÏÂÁî
2.²Ëµ¥À¸£ºÑ¡Ôñ¡¾Ð޸ġ¿--¡¾¹¤¾ß¡¿--¡¾ÑùÌõÇúÏß¡¿²Ëµ¥ÏÂÁî¡£¡£¡£¡£¡£
Æô¶¯ÑùÌõÇúÏß±à¼ÏÂÁîºó£¬£¬£¬£¬£¬ÏÂÁîÐоͻ᷺ÆðÈçϵÄÏÂÁîÌáÐÑ

Õâ¸öÏÂÁîÐв¿·ÖÑ¡Ïî¼ÄÒåÈçÏ¡£¡£¡£¡£¡£
1. ±ÕºÏÑùÌõ(C)
ѡȡ¸ÃÑ¡Ï£¬£¬£¬£¬¿ÉÒÔ½«ÑùÌõÇúÏ߹رա£¡£¡£¡£¡£
2. ¼«µã(V)
Ñ¡Ôñ¸ÃÏîÖ®ºó£¬£¬£¬£¬£¬±»Ñ¡ÔñµÄÑùÌõÇúÏß½«ÏÔʾÆä¼«µã£¬£¬£¬£¬£¬ÕâÊǺó¿ÉÒÔÆ¾Ö¤ÏÂÁîÐÐÌáÐÑ¶ÔÆä¾ÙÐб༡£¡£¡£¡£¡£
3.·´Ïò(E)
Õâ¸öÑ¡Ïî¿ÉÒÔ½«ÑùÌõÇúÏߵįðµãºÍÖÕµã¾ÙÐзת£¬£¬£¬£¬£¬
ÎÒÃÇÀ´¾Ù¸öÀýÀ´¿´¿´£¬£¬£¬£¬£¬ÔõÑùÎÞаÔËÓøÃÏÂÁî°É¡£¡£¡£¡£¡£
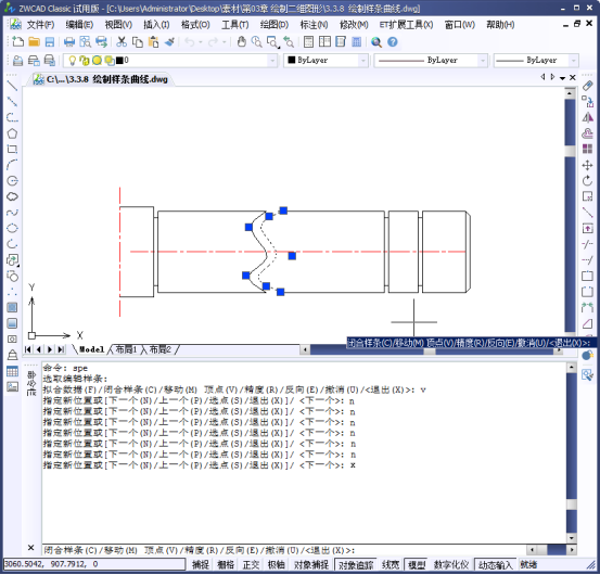
1. ÎÒÃÇͨ¹ýÊäÈëÏÂÁîSPE£¬£¬£¬£¬£¬»ñµÃÏÂͼ

2. ÎÒÃÇѡȡÎÒÃÇÐèÒª±à¼µÄÑùÌõÇúÏߣ¬£¬£¬£¬£¬¾ÙÐвÙ×÷¡£¡£¡£¡£¡£²Î¿¼ÏÂͼ¡£¡£¡£¡£¡£

5.Íê³ÉÉÏÃæ²Ù×÷ºó£¬£¬£¬£¬£¬ÎÒÃǾÍÄÜ»ñµÃÎÒÃÇÐèÒªµÄÑùÌõÇúÏßÁË¡£¡£¡£¡£¡£