ÎÒÃÇÔÚ½¨ÉèºÃͼ²ãÖ®ºó£¬£¬£¬£¬£¬£¬£¬£¬¾Í¿ÉÒÔÔÚ²î±ðµÄͼ²ãÄÚ»æÖÆÍ¼ÐÎÁË¡£¡£¡£¡£¡£¡£¡£ÎÞаµØÊ¹ÓÃͼ²ã£¬£¬£¬£¬£¬£¬£¬£¬ÔÚÄܹ»Ê¹Í¼ÃæÇåÎú¡¢¾«Á·£¬£¬£¬£¬£¬£¬£¬£¬Í¬Ê±Ò²ÄÜΪ»æÍ¼ºÍ´òÓ¡´øÀ´±ãµ±¡£¡£¡£¡£¡£¡£¡£
1.Çл»Ä¿½ñͼ²ã
Ä¿½ñ²ãʱĿ½ñÊÂÇé״̬ÏÂËù´¦µÄͼ²ã¡£¡£¡£¡£¡£¡£¡£µ±É趨ijһͼ²ãΪĿ½ñ²ãºó£¬£¬£¬£¬£¬£¬£¬£¬½ÓÏÂÀ´»æÖƵÄͼÐι¤¾ß¶¼½«Î»ÓÚ¸Ãͼ²ãÖС£¡£¡£¡£¡£¡£¡£ÈôÊÇÒÔºóÏëÔÚÆäËûͼ²ãÖлæÍ¼£¬£¬£¬£¬£¬£¬£¬£¬¾ÍÐèÒª¸üÄ¿½ñ²ãÉèÖᣡ£¡£¡£¡£¡£¡£
ÎÒÃÇÖ»ÐèÒªÔÚ¡¾Í¼²ãÌØÕ÷ÖÎÀíÆ÷¡¿ÓÒ²àÑ¡Ïî¿òÏÂÀÖ®ºó¿´µ½ÎÒÃDzî±ðµÄͼ²ã£¬£¬£¬£¬£¬£¬£¬£¬ÎÒÃÇÖ»ÐèҪѡÖÐÐèÒªµÄͼ²ã£¬£¬£¬£¬£¬£¬£¬£¬¾Í¿ÉÒÔÉèÖÃÆäΪĿ½ñµÄͼ²ã£¬£¬£¬£¬£¬£¬£¬£¬²¢ÇÒ¸Ãͼ²ãµÄÖÖÖÖÏêϸµÄÉèÖö¼ÏÔʾ³ö¡£¡£¡£¡£¡£¡£¡£

ÎÒÃÇÒ²¿ÉÒÔͨ¹ýµã»÷¡¾Í¼²ãÌØÕ÷ÖÎÀíÆ÷¡¿£¬£¬£¬£¬£¬£¬£¬£¬ÔÚËûÃǵ¯³öµÄ¶Ô»°¿òÖоÙÐÐÄ¿½ñͼ²ãµÄÉèÖ㬣¬£¬£¬£¬£¬£¬£¬²Î¿¼ÏÂͼ¡£¡£¡£¡£¡£¡£¡£

2.ת»»Ä¿½ñͼÐÎËùÔÚµÄͼ²ã
ÔÚCADÖУ¬£¬£¬£¬£¬£¬£¬£¬ÎÒÃÇ»¹¿ÉÒÔÊ®·ÖÎÞаµÄ¾ÙÐÐͼ²ãת»»£¬£¬£¬£¬£¬£¬£¬£¬¼´½«Ä³Ò»Í¼²ãÄÚµÄͼÐÎת»»ÖÁÁíÒ»¸öͼ²ã£¬£¬£¬£¬£¬£¬£¬£¬Í¬Ê±Ê¹ÆäÑÕÉ«¡¢ÏßÐÍ¡¢Ïß¿íµÈÌØÕ÷±¬·¢×ª±ä¡£¡£¡£¡£¡£¡£¡£
ÈôÊÇijͼÐι¤¾ßÐèҪת»»Í¼²ã£¬£¬£¬£¬£¬£¬£¬£¬´Ëʱ¿ÉÒÔÏÈÑ¡Ôñ¸ÃͼÐι¤¾ß£¬£¬£¬£¬£¬£¬£¬£¬È»ºóµ¥»÷Õö¿ª¡¾Í¼ÐΡ¿¹¤¾ßÀ¸»òÕßÃæ°åÖеġ¾Í¼²ã¡¿ÏÂÀÁÐ±í£¬£¬£¬£¬£¬£¬£¬£¬Ñ¡Ôñµ½Òª×ª»»µÄÄ¿µÄͼ²ã¼´¿É£¬£¬£¬£¬£¬£¬£¬£¬²Î¿¼ÏÂͼ¡£¡£¡£¡£¡£¡£¡£

±ðµÄ£¬£¬£¬£¬£¬£¬£¬£¬Í¨¹ý¡¾ÌØÕ÷¡¿ºÍ¡¾¿ì½ÝÌØÕ÷¡¿Ñ¡Ïî°åÒ²¿ÉÒÔת»»Í¼ÐÎËùÔÚµÄͼ²ã¡£¡£¡£¡£¡£¡£¡£Ñ¡ÔñÐèҪת»»Í¼²ãµÄͼÐΣ¬£¬£¬£¬£¬£¬£¬£¬·¿ª¡¾¿ì½ÝÌØÕ÷¡¿»òÕß¡¾ÌØÕ÷¡¿Ñ¡Ïî°å£¬£¬£¬£¬£¬£¬£¬£¬ÔÚ¡¾Í¼²ã¡¿ÏÂÀÁбíÖÐÑ¡ÔñÄ¿µÄͼ²ã¼´¿É£¬£¬£¬£¬£¬£¬£¬£¬²Î¿¼ÏÂͼ¡£¡£¡£¡£¡£¡£¡£

ʵÀý£º×ª»»Í¼ÐÎËùÔÚͼ²ã
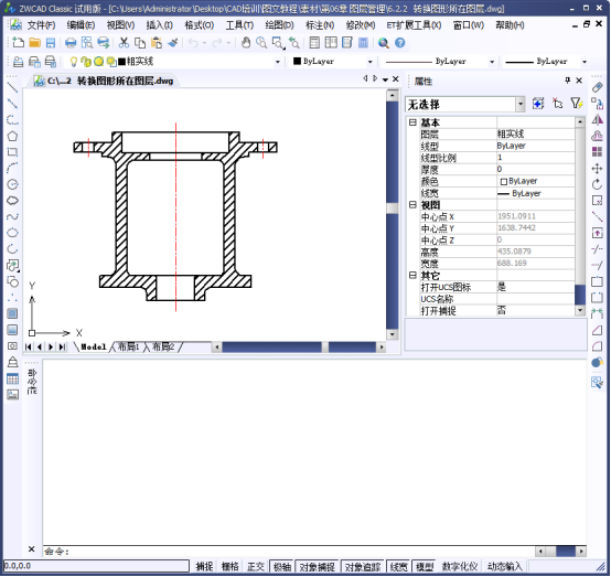
1.ÎÒÃÇʹÓÃÖÐÍûCAD·¿ªÎÒÃÇËØ²ÄÎļþ£¬£¬£¬£¬£¬£¬£¬£¬²Î¿¼ÏÂͼ¡£¡£¡£¡£¡£¡£¡£

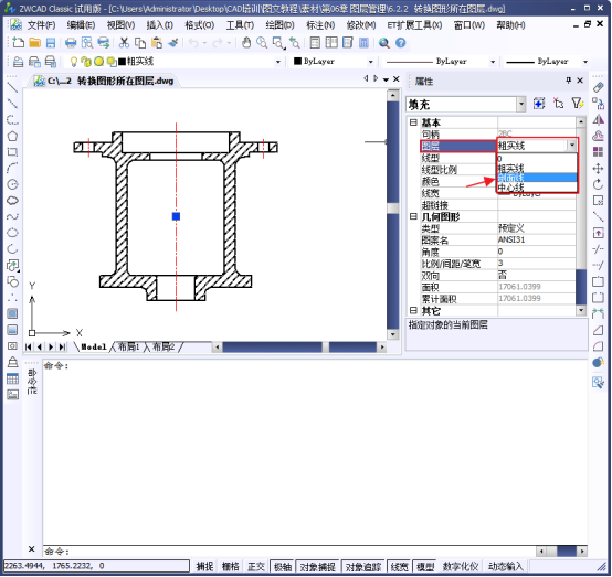
2.µ¥»÷Ñ¡ÔñÆÊÃæÌî³äͼ°¸£¬£¬£¬£¬£¬£¬£¬£¬Õö¿ª¡¾Í¼²ã¡¿Ãæ°åÖеġ¾Í¼²ã¡¿ÏÂÀÁÐ±í£¬£¬£¬£¬£¬£¬£¬£¬Ñ¡Ôñ¡¾ÆÊÃæÏß¡¿Í¼²ã×÷ΪĿµÄͼ²ã£¬£¬£¬£¬£¬£¬£¬£¬²Î¿¼ÏÂͼ¡£¡£¡£¡£¡£¡£¡£

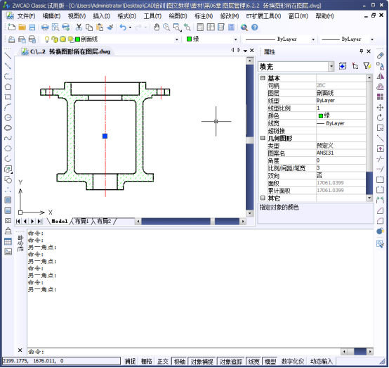
3.Ñ¡ÔñºÃÖ®ºó£¬£¬£¬£¬£¬£¬£¬£¬ÎÒÃǾͿÉÒÔ¿´µ½Ìî³äµÄͼ°¸Á¬Ã¦¼ÌÐø¡¾ÆÊÃæÏß¡¿Í¼²ãµÄÏà¹ØÌØÕ÷£¬£¬£¬£¬£¬£¬£¬£¬°üÀ¨Ïß¿í¡¢ÑÕÉ«µÈ£¬£¬£¬£¬£¬£¬£¬£¬ÎÒÃÇ¿ÉÒÔºÍÉÏͼ×ö³ö±ÈÕÕ£¬£¬£¬£¬£¬£¬£¬£¬²Î¿¼ÏÂͼ¡£¡£¡£¡£¡£¡£¡£

¼¼Çɵ㲦£º
Õö¿ª¡¾Í¼²ã¡¿Ãæ°å»ò¹¤¾ßÀ¸Öеġ¾Í¼²ã¡¿ÏÂÀÁÐ±í£¬£¬£¬£¬£¬£¬£¬£¬µ¥»÷״̬ͼ±ê£¬£¬£¬£¬£¬£¬£¬£¬¿ÉÔÚ²»·¿ª¡¾Í¼²ãÌØÕ÷ÖÎÀíÆ÷¡¿Ñ¡Ïî°åµÄÇéÐÎÏ£¬£¬£¬£¬£¬£¬£¬£¬¿ìËÙÉèÖÃͼ²ãµÄ״̬¡£¡£¡£¡£¡£¡£¡£