CADÖÐ×¢ÊÍÐÔ±ê×¢ºÍÒ»Ñùƽ³£±ê×¢Óкβî±ð
ÔÚʹÓÃCADʱ£¬£¬£¬£¬£¬×¢ÊÍÐÔ¿ÉÒÔÈÃͳһͼÐÎÔÚ²î±ð±ÈÀýµÄ½á¹¹ÊÓ¿ÚÀïÎÄ×ֺͱê×¢ÎÄ×ÖÏÔʾµÄ¸ß¶È¼á³ÖÒ»Ö¡£¡£¡£¡£¡£¡£¡£¡£ ʹÓÃ×¢ÊÍÐÔ±ã¿ÉÒÔ²»±Ø·±ËöµØÉèÖòî±ðµÄÈ«¾Ö±ÈÀýºÍÎÄ×ָ߶ȡ£¡£¡£¡£¡£¡£¡£¡£
ÒÔ±êעΪÀý£ºÔÚ±ê×¢Ñùʽ£¨¿ì½Ý¼üD£©ÖУ¬£¬£¬£¬£¬¹´Ñ¡¡°×¢ÊÍÐÔ¡±¡£¡£¡£¡£¡£¡£¡£¡£

±ê×¢¾ÍÊǾßÓÐ×¢ÊÍÐԵıê×¢¡£¡£¡£¡£¡£¡£¡£¡£
Íê³É±ê×¢ºó£¬£¬£¬£¬£¬×ªÖÁÊÓ¿ÚÖУ¬£¬£¬£¬£¬È·±£×ó±ßÁ½¸ö¹ØÓÚ×¢ÊÍÐÔµÄÑ¡Ïî·¿ª¡£¡£¡£¡£¡£¡£¡£¡£
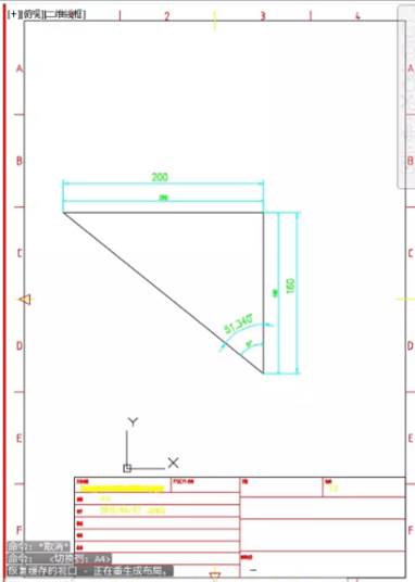
ÔÚÏÂÃæµÄÈý½ÇÐÎÀý×ÓÖУ¬£¬£¬£¬£¬Á½¸ö±ê×¢ÖÐÉÏÃæËÈ˾ßÓÐ×¢ÊÍ¡£¡£¡£¡£¡£¡£¡£¡£

¿ÉÒÔ¿´µ½Á½¸ö±ê×¢µÄÎÄ×ָ߶ÈÊÇÒ»ÑùµÄ£¬£¬£¬£¬£¬´ËʱÊӿڵıÈÀýÊÇ1£º1¡£¡£¡£¡£¡£¡£¡£¡£½ÓÏÂÀ´¸ü¸ÄÊÓ¿Ú±ÈÀýÖÁ1:2¡£¡£¡£¡£¡£¡£¡£¡£¿£¿£¿£¿£¿£¿£¿£¿ÉÒÔ¿´µ½£¬£¬£¬£¬£¬²»´ø×¢ÊÍÐԵıê×¢Ëæ×ÅÒ»ÆðËõСÁË£¬£¬£¬£¬£¬´ø×¢ÊÍÐԵıê×¢ÎÄ×Ö£¨ÉÐÓмýÍ·£©Ïà¶ÔͼֽµÄ¸ß¶È²¢Ã»ÓмõС¡£¡£¡£¡£¡£¡£¡£¡£

ÍÆ¼öÔĶÁ£ºCADÖÆÍ¼³õѧÈëÃÅ
ÍÆ¼öÔĶÁ£º3D´òÓ¡»ú
¡¤Ãâ·ÑÁì90Å·ÔªÃÅÆ±£üÖÐÍûÑûÄú¹²¸°ººÅµÍþ£º¹²¼û¹¤ÒµÊý×Ö»¯µÄÈ«Çòͼ¾°2026-02-05
¡¤ ²ú½ÌÈÚºÏÐÂʵ¼ù£ºÖÐÍûЯÊÖ¸»ÁÙ¾«¹¤¼°´¨ÄÚ¸ßУ¾ÙÐÐÊ׽조׿Խ¹¤³Ìʦ±¡±Éè¼Æ´óÈü2026-01-06
¡¤ ÖÐÍûÈí¼þÁÁÏàÕã½Æû³µÊýÖÇ»¯Äê»á£¬£¬£¬£¬£¬ÒÔ3D+¸³ÄÜÆû³µÁ㲿¼þÐÐҵתÐÍÉý¼¶2026-01-04
¡¤ ÖÐÍûÈí¼þÓ뽨Áؼ¯ÍŸ濢սÂÔÏàÖú£¡¹²ÆôÎÀ³øÐÐÒµÊý×Ö»¯Ñз¢ÐÂÕ÷³Ì2026-01-04
¡¤ ÖÐÍûCAD 365ÈëÑ¡±ÏÂíÍþ²»¶¯²ú¿Æ¼¼50Ç¿£ºÔÆÔÉúÐͬ£¬£¬£¬£¬£¬ÖØËÜÉè¼ÆÉú²úÁ¦Ð·¶Ê½2025-12-22
¡¤ ÖÐÍûÈí¼þÓë¸ñÁ¦µçÆ÷¸æ¿¢Õ½ÂÔÏàÖú£¬£¬£¬£¬£¬¹²ÖþÖйúÖÆÔìÊý×Ö»¯×ªÐͱê¸Ë2025-12-22
¡¤ ²®ÀÊÌØ»úеÈË£ºCAXÒ»Ìå»¯Æ½Ì¨Í»ÆÆÉè¼Æ±ÚÀÝ£¬£¬£¬£¬£¬¿ªÆôÖÇÄÜÖÆÔìÐÂÆªÕÂ2025-12-17
¡¤ Ä£¾ß¼Ó¹¤20Ä꣬£¬£¬£¬£¬ËûÌìÌì¶¼ÔÚ¡°Ä¥¡±Ê²Ã´£¿£¿£¿£¿£¿£¿£¿£¿2025-12-15
¡¤ÍæÈ¤3D£ºÔõÑùÓ¦ÓÃÖÐÍû3D£¬£¬£¬£¬£¬¿ìËÙÉè¼Æ»ùÕ¾ÌìÏß´«¶¯Âݸˣ¿£¿£¿£¿£¿£¿£¿£¿2022-02-10
¡¤È¤Íæ3D£ºÊ¹ÓÃÖÐÍû3DÉè¼Æ³µ¶¥ÕÊÅñ£¬£¬£¬£¬£¬Îª»§ÍâÐÝÏÐÔöÌíÐÂ×°±¸2021-11-25
¡¤ÏÖ´úÓëÀúÊ·µÄÅöײ£º°¢¸ù͢ѧÉúÓ¦ÓÃÖÐÍû3D£¬£¬£¬£¬£¬ÊÖÒÕÖØÏִ·ÒÆæ¡°·Éµú¡±Ì¹¿ËÔÐÍ2021-09-26
¡¤ÎÒµÄÖ鱦ÈËÉú£ºÎ÷°àÑÀÉè¼ÆÊ¦ÓÃÖÐÍû3DÉè¼Æ»ªÃÀÖ鱦2021-09-26
¡¤9¸öСÃîÕУ¬£¬£¬£¬£¬Çл»ÖÁÖÐÍûCAD¾¹¿ÉÒÔÔÆÔÆË³º¨³©ËÙ 2021-09-06
¡¤ÔÀ´²åÍ·ÊÇÕâÑùÉè¼ÆµÄ£¬£¬£¬£¬£¬¿´ÍêÄãѧ»áÁËÂ𣿣¿£¿£¿£¿£¿£¿£¿2021-09-06
¡¤ÍæÈ¤3D£ºÔõÑùÇÉÓÃÖÐÍû3D 2022й¦Ð§£¬£¬£¬£¬£¬Éè¼Æ×¨ÊôÏà»ú£¿£¿£¿£¿£¿£¿£¿£¿2021-08-10
¡¤ CADÖжþάµãµÄÊäÈë·½·¨2017-08-15
¡¤Ê¹ÓÃÓ³Éä½â¾öCAD×ÖÌåȱʧ2023-07-24
¡¤ÔõÑùʹÓÃCADµÄ²¢¼¯¹¤¾ß£¿£¿£¿£¿£¿£¿£¿£¿2022-05-30
¡¤CADÖг£ÓõÄÁ½ÖÖÕóÁÐ2020-05-25
¡¤CADÔõÑùÕÒ»ØÃ»ÓÐÉúÑĵÄͼֽ2015-12-02
¡¤CADʹÓÿìËÙ±êעʱ£¬£¬£¬£¬£¬ÎªÊ²Ã´»á¶à³ö¡°0¡±µÄ±ê×¢2024-03-21
¡¤CADÓû§Ä¿Â¼ÔõôÕûÀí2023-07-17
¡¤CADÔõÑù»æÖƱÞÅÚ2022-01-24

Ãâ·ÑÁìÈ¡30Ì켤»îÂë
ÁªÏµ¿Í·þ
