Ôõô¸øCADǽÌåÌí¼ÓÖáÏß
cad»æÖÆÐÞ½¨Í¼µÄʱ¼ä£¬£¬£¬£¬£¬Ç½ÌåÊÇÒ»¸öÊ®·ÖÖ÷ÒªµÄ²¿Î»£¬£¬£¬£¬£¬Ç½ÌåÆðµ½ÁËÍÑÀëÄÚÍâ¿Õ¼ä£¬£¬£¬£¬£¬Ö§½âÊÒÄÚ¿Õ¼äµÄÖ÷Òª×÷Ó㻣»£»£»£»Ò»Ñùƽ³£Ê×ÏÈ»æÖÆÖáÍø£¬£¬£¬£¬£¬Ö®ºó»æÖÆÇ½Ì壬£¬£¬£¬£¬¿ÉÊÇÒ²¿ÉÒÔÔÚǽÌåÖÐÌØÊâÌí¼ÓÖáÏߣ¬£¬£¬£¬£¬¸ÃÔõô¸øÇ½ÌåÌí¼ÓÖáÏßÄØ£¿£¿£¿£¿£¿ÏÂÃæÎÒÃǾÍÀ´¿´¿´ÏêϸµÄ½Ì³Ì¡£¡£¡£¡£¡£
Ò»¡¢»æÖÆ»ù´¡Ç½Ìå
1¡¢Ê×ÏÈ£¬£¬£¬£¬£¬ÎÒÃÇͬʱ¿ªÆôÌìÕý»æÍ¼ºÍÖÐÍûCAD»æÍ¼Èí¼þ£¬£¬£¬£¬£¬Á½¸ö»æÍ¼Èí¼þͬʱʹÓ㬣¬£¬£¬£¬¿ÉÒÔÏ໥ȡ³¤²¹¶Ì£¬£¬£¬£¬£¬ÔöÌí»æÍ¼µÄ¾«×¼Ë®Æ½ºÍ»æÍ¼ËÙÂÊ£¬£¬£¬£¬£¬´Ó¶øÄܹ»¸ü¿ì¸üºÃµÄÍê³ÉʹÃü¡£¡£¡£¡£¡£
2¡¢ÎÒÃÇÏȾÙÐлù´¡Ç½ÌåµÄ»æÖÆ£¬£¬£¬£¬£¬ÔÚÖÐÍûCAD»æÍ¼´°¿ÚµÄ×ó·½¹¤¾ßÀ¸ÖУ¬£¬£¬£¬£¬Ñ¡Ôñ¡°Ç½Ì塪¡ª»æÖÆÇ½Ì塱£¬£¬£¬£¬£¬¾ÙÐÐǽÌåµÄ»æÖÆ£¬£¬£¬£¬£¬ÏµÍ³»á×Ôת¶¯³öǽÌåµÄÉèÖô°¿Ú
3¡¢ÔÚϵͳµ¯³öµÄǽÌåÉèÖô°¿Ú£¬£¬£¬£¬£¬ÎÒÃÇ¿ÉÒÔ¾ÙÐÐǽÌåµÄ¿í¶ÈÉèÖ㬣¬£¬£¬£¬¿í¶ÈÉèÖÿÉÒÔÉèÖÃ×ó¿íºÍÓÒ¿í£¬£¬£¬£¬£¬×ÊÖúÎÒÃÇÔ½·¢×¼È·µÄ´¦Öóͷ£Ç½ÌåµÄϸ½Ú²¿Î»£¬£¬£¬£¬£¬Íê³ÉÉèÖú󣬣¬£¬£¬£¬¼´¿É×îÏÈ»æÖÆ¡£¡£¡£¡£¡£
4¡¢Êó±ê×ó¼üµ¥»÷»æÍ¼´°¿Ú¼´¿É×îÏÈ»æÖÆ£¬£¬£¬£¬£¬Ç½Ìå¿ÉÒÔΪбÏߣ¬£¬£¬£¬£¬¿ÉÊÇ´ó¶¼Í¼Ö½ÖУ¬£¬£¬£¬£¬Ç½ÌåΪˮƽÊúÖ±£»£»£»£»£»Òò´Ë£¬£¬£¬£¬£¬ÎÒÃǰ´ÏÂF8¼ü£¬£¬£¬£¬£¬¾ÙÐбÊÖ±Ëø¶¨£¬£¬£¬£¬£¬ÕâÑù¾Í¿ÉÒÔ°ü¹ÜǽÌåÖ®¼äµÄÏ໥±ÊÖ±¡£¡£¡£¡£¡£
5¡¢°´ÏÂF8¼üÖ®ºó£¬£¬£¬£¬£¬Ç½Ìå»á×Ô¶¯Ë®Æ½»æÖÆ£¬£¬£¬£¬£¬×èÖ¹·ºÆðÇãбǽÌ壬£¬£¬£¬£¬Àû±ãÎÒÃǾÙÐÐÆäËû²Ù×÷£¬£¬£¬£¬£¬Êó±êµ¥»÷È·¶¨Ç½ÌåµÄתÕ۵㣬£¬£¬£¬£¬Êó±êÒÆ¶¯À´È·¶¨Ç½ÌåµÄ³¤¶ÈºÍÆ«Ïò¡£¡£¡£¡£¡£

6¡¢ÐÞ½¨Í¼Ö½ÖеĻù´¡Ç½Ì壬£¬£¬£¬£¬ÓÈÆäÊÇÍâǽ£¬£¬£¬£¬£¬Ê×ÏÈ»æÖƳɹرÕǽÌ壬£¬£¬£¬£¬È·¶¨ÐÞ½¨ÎïµÄ»ù±¾ÂÖÀª£¬£¬£¬£¬£¬Ö®ºó¿ÉÒÔÓÃÃÅ´°µÈÏÂÁîÀ´ÐÞ¸ÄǽÌ壻£»£»£»£»Íê³ÉǽÌ廿֯ºó£¬£¬£¬£¬£¬ÎÒÃǼ´¿É¾ÙÐÐǽÌåÖáÏߵIJåÈë¡£¡£¡£¡£¡£

¶þ¡¢Ìí¼ÓǽÌåÖáÏß
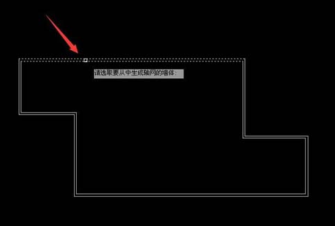
1¡¢ÔÚǽÌåÖÐÌí¼ÓÖáÏߣ¬£¬£¬£¬£¬ÎÒÃÇÏÈÑ¡ÔñºÏÊʵIJÙ×÷ÏÂÁ£¬£¬£¬£¬ÔÚÖÐÍûCAD×ó²à¹¤¾ßÀ¸ÖУ¬£¬£¬£¬£¬Ñ¡Ôñ¡°ÖáÍøÖù×Ó¡ª¡ªÇ½ÉúÖáÍø¡±£¬£¬£¬£¬£¬È·¶¨ÃüÁîºó£¬£¬£¬£¬£¬½«Êó±êÒÆ¶¯µ½»æÍ¼´¦£¬£¬£¬£¬£¬¼´¿É¿´µ½ÏµÍ³ÌáÐÑ¡£¡£¡£¡£¡£
2¡¢ÎÒÃÇÆ¾Ö¤ÏµÍ³µÄ²Ù×÷ÌáÐÑ£¬£¬£¬£¬£¬Ñ¡ÔñÐèÒªÔöÌíÖáÏßµÄǽÌ壬£¬£¬£¬£¬µ¥»÷¼´¿ÉÈ·¶¨Ç½Ì壬£¬£¬£¬£¬±»Ñ¡ÖеÄǽÌå»áÄð³ÉÐéÏߣ¬£¬£¬£¬£¬Àû±ãÎÒÃǾÙÐÐÇø·Ö£»£»£»£»£»È·¶¨Íê³ÉǽÌåºó£¬£¬£¬£¬£¬°´Ï¿ոñ¼ü¼´¿ÉÈ·¶¨²¢Êä³öÖáÏß¡£¡£¡£¡£¡£

3¡¢°´Ï¿ոñ¼üÈ·¶¨Ç½Ìåºó£¬£¬£¬£¬£¬ÏµÍ³»á×Ô¶¯Êä³öÖáÏߣ¬£¬£¬£¬£¬ÎÒÃÇ¿ÉÒÔ¿´µ½ÖáÏß»áÔÚǽÌåÖÐÐÄλÖÃÌí¼Ó£¬£¬£¬£¬£¬²¢ÇÒ³¤¶È»áÁè¼ÝǽÌ壻£»£»£»£»ÕâÑù£¬£¬£¬£¬£¬ÎÒÃǾÍÍê³ÉÁËÒ»ÃæÇ½µÄÖáÏßÌí¼Ó¡£¡£¡£¡£¡£
4¡¢ÈôÊÇÐèÒª¼ÌÐøÌí¼ÓÖáÏߣ¬£¬£¬£¬£¬ÎÒÃÇ¿ÉÒÔ°´Ï¿ոñ¼ü£»£»£»£»£»ÕâÑùϵͳ¾Í»áÑÓÐøÏÂÁ£¬£¬£¬£¬ÎÒÃÇ¿ÉÒÔ¼ÌÐøÑ¡ÔñºÏÊʵÄǽÌå¾ÙÐÐÖáÏßµÄÌí¼Ó£¬£¬£¬£¬£¬Ñ¡ÔñǽÌå¿ÉÒÔÒ»´ÎÐÔÑ¡Ôñ¶à¸öǽÌ壬£¬£¬£¬£¬¿ìËÙÌí¼Ó¶àÌõÖáÏß¡£¡£¡£¡£¡£
5¡¢ÔÚϵͳÌáÐÑÑ¡ÔñǽÌåµÄʱ¼ä£¬£¬£¬£¬£¬Ò»Á¬Ñ¡Ôñ¶à¸öǽÌå¼´¿É£¬£¬£¬£¬£¬ÏµÍ³»á½«ËùÓÐÑ¡ÖеÄǽÌåÄð³ÉÐéÏߣ¬£¬£¬£¬£¬ÕâÑù¾Í¿ÉÒԺܺõÄÇø·Ö²î±ðǽÌ壻£»£»£»£»Í¬Ñù°´Ï¿ոñ¼ü£¬£¬£¬£¬£¬¼´¿ÉÈ·¶¨Ñ¡Ôñ£¬£¬£¬£¬£¬²¢Êä³öÖáÏß¡£¡£¡£¡£¡£
6¡¢ÏµÍ³»á×Ô¶¯½«ÖáÏßÌí¼Óµ½Ç½ÌåµÄÖÐÐÄλÖ㬣¬£¬£¬£¬²¢ÇÒºáǽÌí¼ÓºáÖáÏߣ¬£¬£¬£¬£¬ÊúǽÌí¼ÓÊúÖáÏߣ»£»£»£»£»Æ¾Ö¤Ç½ÌåÌí¼ÓµÄÖáÏߣ¬£¬£¬£¬£¬ÏµÍ³»áƾ֤ǽÌåµÄÂþÑÜ£¬£¬£¬£¬£¬×Ô¶¯È·¶¨ÖáÏßµÄ×ó½øÓÒ½øºÍÉÏ¿ªÏ¿ª¡£¡£¡£¡£¡£
7¡¢°´Ï¿ոñ¼üÑÓÐøÏÂÁ£¬£¬£¬£¬Öظ´²Ù×÷£¬£¬£¬£¬£¬¼´¿É½«ËùÓÐǽÌåÌí¼ÓÖáÏߣ¬£¬£¬£¬£¬¶à¸öÖáÏßÏ໥½»Ö¯£¬£¬£¬£¬£¬¼´¿ÉÐγÉÖáÍø£»£»£»£»£»Æ¾Ö¤Ç½ÌåÌìÉúµÄÖáÍøºÍ»ù´¡ÖáÍøÏàͬ£¬£¬£¬£¬£¬¿ÉÒÔ¾ÙÐÐÖáÍø±ê×¢µÈÖݪֲÙ×÷¡£¡£¡£¡£¡£
8¡¢ÔÚ¾ÙÐÐÐÞ½¨Í¼Ö½µÄ»æÖÆÊ±£¬£¬£¬£¬£¬ÎªÁËÍ»³öǽÌ壬£¬£¬£¬£¬ÎÒÃÇ¿ÉÒÔµã»÷ÓÒϽǵġ°¼Ó´Ö¡±Ñ¡Ï£¬£¬£¬£¬¶ÔǽÌå¾ÙÐмӴ֣¬£¬£¬£¬£¬¡°¼Ó´Ö¡±ÏÂÁîÖ»ÊÊÓÃÓÚǽÌ壻£»£»£»£»Íê³ÉÖáÍøºÍǽÌåµÄ»æÖƺ󣬣¬£¬£¬£¬ÐÞ½¨µÄÍâΧÂÖÀªÒ²±»È·¶¨£¬£¬£¬£¬£¬ÖáÏßµÄÿһ¸ö½»µã´ú±íÖù×ÓµÄλÖᣡ£¡£¡£¡£

ÍÆ¼öÔĶÁ£ºCADÖÆÍ¼³õѧÈëÃÅ
ÍÆ¼öÔĶÁ£º3D´òÓ¡»ú
¡¤Ãâ·ÑÁì90Å·ÔªÃÅÆ±£üÖÐÍûÑûÄú¹²¸°ººÅµÍþ£º¹²¼û¹¤ÒµÊý×Ö»¯µÄÈ«Çòͼ¾°2026-02-05
¡¤ ²ú½ÌÈÚºÏÐÂʵ¼ù£ºÖÐÍûЯÊÖ¸»ÁÙ¾«¹¤¼°´¨ÄÚ¸ßУ¾ÙÐÐÊ׽조׿Խ¹¤³Ìʦ±¡±Éè¼Æ´óÈü2026-01-06
¡¤ ÖÐÍûÈí¼þÁÁÏàÕã½Æû³µÊýÖÇ»¯Äê»á£¬£¬£¬£¬£¬ÒÔ3D+¸³ÄÜÆû³µÁ㲿¼þÐÐҵתÐÍÉý¼¶2026-01-04
¡¤ ÖÐÍûÈí¼þÓ뽨Áؼ¯ÍŸ濢սÂÔÏàÖú£¡¹²ÆôÎÀ³øÐÐÒµÊý×Ö»¯Ñз¢ÐÂÕ÷³Ì2026-01-04
¡¤ ÖÐÍûCAD 365ÈëÑ¡±ÏÂíÍþ²»¶¯²ú¿Æ¼¼50Ç¿£ºÔÆÔÉúÐͬ£¬£¬£¬£¬£¬ÖØËÜÉè¼ÆÉú²úÁ¦Ð·¶Ê½2025-12-22
¡¤ ÖÐÍûÈí¼þÓë¸ñÁ¦µçÆ÷¸æ¿¢Õ½ÂÔÏàÖú£¬£¬£¬£¬£¬¹²ÖþÖйúÖÆÔìÊý×Ö»¯×ªÐͱê¸Ë2025-12-22
¡¤ ²®ÀÊÌØ»úеÈË£ºCAXÒ»Ìå»¯Æ½Ì¨Í»ÆÆÉè¼Æ±ÚÀÝ£¬£¬£¬£¬£¬¿ªÆôÖÇÄÜÖÆÔìÐÂÆªÕÂ2025-12-17
¡¤ Ä£¾ß¼Ó¹¤20Ä꣬£¬£¬£¬£¬ËûÌìÌì¶¼ÔÚ¡°Ä¥¡±Ê²Ã´£¿£¿£¿£¿£¿2025-12-15
¡¤ÍæÈ¤3D£ºÔõÑùÓ¦ÓÃÖÐÍû3D£¬£¬£¬£¬£¬¿ìËÙÉè¼Æ»ùÕ¾ÌìÏß´«¶¯Âݸˣ¿£¿£¿£¿£¿2022-02-10
¡¤È¤Íæ3D£ºÊ¹ÓÃÖÐÍû3DÉè¼Æ³µ¶¥ÕÊÅñ£¬£¬£¬£¬£¬Îª»§ÍâÐÝÏÐÔöÌíÐÂ×°±¸2021-11-25
¡¤ÏÖ´úÓëÀúÊ·µÄÅöײ£º°¢¸ù͢ѧÉúÓ¦ÓÃÖÐÍû3D£¬£¬£¬£¬£¬ÊÖÒÕÖØÏִ·ÒÆæ¡°·Éµú¡±Ì¹¿ËÔÐÍ2021-09-26
¡¤ÎÒµÄÖ鱦ÈËÉú£ºÎ÷°àÑÀÉè¼ÆÊ¦ÓÃÖÐÍû3DÉè¼Æ»ªÃÀÖ鱦2021-09-26
¡¤9¸öСÃîÕУ¬£¬£¬£¬£¬Çл»ÖÁÖÐÍûCAD¾¹¿ÉÒÔÔÆÔÆË³º¨³©ËÙ 2021-09-06
¡¤ÔÀ´²åÍ·ÊÇÕâÑùÉè¼ÆµÄ£¬£¬£¬£¬£¬¿´ÍêÄãѧ»áÁËÂ𣿣¿£¿£¿£¿2021-09-06
¡¤ÍæÈ¤3D£ºÔõÑùÇÉÓÃÖÐÍû3D 2022й¦Ð§£¬£¬£¬£¬£¬Éè¼Æ×¨ÊôÏà»ú£¿£¿£¿£¿£¿2021-08-10
¡¤?CADäÖȾ²ÄÖʵÄËÄÖÖÌùͼÏêϸڹÊÍ2016-11-07
¡¤CADÖÐÔõÑùÓ¦ÓÃÓëÉèÖÃ×Ô½ç˵Ìî³äͼ°¸£¨PATÎļþ£©£¿£¿£¿£¿£¿2024-08-29
¡¤CADÖеÄUCSÊÇʲô2023-02-17
¡¤CADÔõÑù¿ìËÙɾ³ýÖØºÏÏß2017-05-24
¡¤ÔÚCADÖÐctrl¼üÓÐÄÄЩÓ÷¨2021-11-19
¡¤CADͼÐεÄÏß¿íÏÔʾ²»³öÀ´2015-11-24
¡¤CADÖеÄÓïÒôÎļþ¿ìËÙɾ³ý2023-08-09

Ãâ·ÑÁìÈ¡30Ì켤»îÂë
ÁªÏµ¿Í·þ
