CADÔõÑùʹÓÿìËÙ±ê×¢½¨ÉèÒ»¸ö²¢Áбê×¢
ÔÚCADÖУ¬£¬£¬£¬£¬£¬£¬¿ìËÙ±ê×¢ÏÂÁî¿ÉÒÔÓÃÀ´¿ìËÙ½¨Éè»ò±à¼Ò»ÏµÁбê×¢¡£¡£¡£¡£¡£¡£¡£µ±ÐèÒª½¨ÉèһϵÁлùÏß¡¢Ò»Á¬»ò²¢Áбê×¢£¬£¬£¬£¬£¬£¬£¬»òÕßΪһϵÁÐÔ²»òÔ²»¡½¨Éè±êעʱ£¬£¬£¬£¬£¬£¬£¬¿ìËÙ±ê×¢ÏÂÁîÌØÊâÓÐÓᣡ£¡£¡£¡£¡£¡£½ÓÏÂÀ´ÎÒÃÇÒ»ÆðÀ´¿´Ò»ÏÂÔõÑùÓÿìËÙ±ê×¢½¨ÉèÒ»¸ö²¢Áбê×¢°É£¡
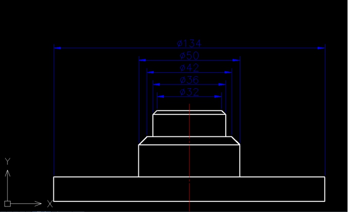
1. ÈçÏÂͼËùʾÊÇÒ»¸ö±Ã¸ÇͼÐΣ¬£¬£¬£¬£¬£¬£¬ÎÒÃÇҪʹÓÿìËÙ±ê×¢ÏÂÁîΪÕâ¸ö±Ã¸Ç½¨ÉèÒ»¸ö²¢Áбê×¢µÄÖ±¾¶±ê×¢¡£¡£¡£¡£¡£¡£¡£ÓÉÓÚÒª½¨ÉèµÄÊÇÖ±¾¶±ê×¢£¬£¬£¬£¬£¬£¬£¬¶øÊ°È¡µÄ±ê×¢¹¤¾ßËùÓÐÊÇÏßÐÔ¹¤¾ß£¬£¬£¬£¬£¬£¬£¬Òò´ËÐèÒª¸øËùÓбê×¢ÔöÌíÒ»¸öÖ±¾¶·ûºÅµÄǰ׺£¬£¬£¬£¬£¬£¬£¬Ìí¼ÓÒªÁìÇë¿´½ÓÏÂÀ´µÄ°ì·¨¡£¡£¡£¡£¡£¡£¡£

2. ÒÀ´Îµã»÷CAD±à¼Æ÷ÉÏ·½µÄ¡¾±ê×¢¡¿¡ª¡ª¡¾±ê×¢Ñùʽ¡¿°´Å¥£¬£¬£¬£¬£¬£¬£¬µ¯³ö¡¾±ê×¢ÑùʽÖÎÀíÆ÷¡¿¶Ô»°¿ò£¬£¬£¬£¬£¬£¬£¬ÈçÏÂͼËùʾ¡£¡£¡£¡£¡£¡£¡£

3. È·±£ÔÚ¡°Ñùʽ¡±Áбí¿òÖÐÑ¡ÖС°GB-35¡±£¬£¬£¬£¬£¬£¬£¬µã»÷¡¾Ìæ»»¡¿°´Å¥£¬£¬£¬£¬£¬£¬£¬µ¯³ö¡¾Ì滻Ŀ½ñ±ê×¢Ñùʽ£ºGB-35¡¿¶Ô»°¿ò£¬£¬£¬£¬£¬£¬£¬Ñ¡ÔñÆäÖеġ°Ö÷µ¥Î»¡±Ñ¡Ï£¬£¬£¬£¬£¬£¬£¬ÔÚ¡°ÏßÐÔ±ê×¢¡±Öеġ°Ç°×º¡±Îı¾¿òÖÐÊäÈëÖ±¾¶·ûºÅ¡°§¶¡±£¬£¬£¬£¬£¬£¬£¬ÎÒÃÇÊäÈë¡°%%c¡±¼´¿É¡£¡£¡£¡£¡£¡£¡£

4. µã»÷¡¾È·¶¨¡¿°´Å¥£¬£¬£¬£¬£¬£¬£¬»Øµ½¡¾±ê×¢ÑùʽÖÎÀíÆ÷¡¿¶Ô»°¿ò£¬£¬£¬£¬£¬£¬£¬ÔÙµã»÷¡¾¹Ø±Õ¡¿°´Å¥£¬£¬£¬£¬£¬£¬£¬»Øµ½»æÍ¼½çÃæ£¬£¬£¬£¬£¬£¬£¬ÕâÑù¾ÍÍê³ÉÁ˶ÔÖ±¾¶·ûºÅµÄÌí¼Ó¡£¡£¡£¡£¡£¡£¡£Ä¿½ñ±ê×¢Ìæ»»ÑùʽµÄÏßÐÔ±ê×¢½«ÔÝʱ¼ÓÉÏÖ±¾¶·ûºÅ£¬£¬£¬£¬£¬£¬£¬ÔÙÖØÐÂÑ¡ÔñÕâ¸ö¡°GB-35¡±Ñùʽʱ£¬£¬£¬£¬£¬£¬£¬½«»Ö¸´ÎªÃ»ÓÐǰ׺¡£¡£¡£¡£¡£¡£¡£
5. ÒÀ´Îµã»÷¡¾±ê×¢¡¿¡ª¡ª¡¾¿ìËÙ±ê×¢¡¿°´Å¥£¬£¬£¬£¬£¬£¬£¬Ê¹Óô°¿ÚÑ¡Ôñ·½·¨Ñ¡ÖбøÇÉϲ¿µÄËùÓÐͼÐΣ¬£¬£¬£¬£¬£¬£¬ÈçÏÂͼËùʾ¡£¡£¡£¡£¡£¡£¡£

6. ƾ֤ÏÂÁîÐÐÌáÐÑ¡°Ñ¡ÕªÒª±ê×¢µÄ¼¸ºÎͼÐΡ±Ê±£¬£¬£¬£¬£¬£¬£¬Ö±½Ó°´»Ø³µ¼ü¿¢ÊÂÑ¡Ôñ£¬£¬£¬£¬£¬£¬£¬ÏÂÒ»²½»áÏÔʾĿ½ñ±ê×¢ÐÎʽΪ¡°Ò»Á¬¡±£¬£¬£¬£¬£¬£¬£¬ÎÒÃÇÒªÔÚÏÂÁîÐÐÖÐÊäÈë¡°S¡±ÏÂÁîµ÷½âΪ²¢Áбê×¢£¬£¬£¬£¬£¬£¬£¬È»ºóÏòÉÏÀ³ö±ê×¢³ß´çÏߣ¬£¬£¬£¬£¬£¬£¬×Ô½ç˵ºÏÊʵijߴçÏßλÖᣡ£¡£¡£¡£¡£¡£

7. Íê³ÉºóµÄ¿ìËÙ²¢ÁбêעЧ¹ûÈçÏÂͼËùʾ¡£¡£¡£¡£¡£¡£¡£

ÒÔÉϾÍÊÇÓÿìËÙ±ê×¢½¨ÉèÒ»¸ö²¢Áбê×¢µÄÀý×Ó£¬£¬£¬£¬£¬£¬£¬¿ìËÙ±ê×¢¿ÉÒÔÓ¦ÓÃÓÚ»ùÏß¡¢Ò»Á¬¡¢²¢ÁС¢×ø±ê¡¢°ë¾¶¡¢Ö±¾¶µÈ±ê×¢ÐÎʽ£¬£¬£¬£¬£¬£¬£¬¿ÉÊÇÓÐʱ¼ä¿ìËÙ±ê×¢µÄЧ¹û²»¿ÉÍêÈ«µÖ´ï23411ÓÀÀûÒªÇ󣬣¬£¬£¬£¬£¬£¬Õâʱ¾ÍÐèÒª¾ÙÐоֲ¿µÄµ÷½â¡£¡£¡£¡£¡£¡£¡£
ÍÆ¼öÔĶÁ£º¹ú²úCAD
ÍÆ¼öÔĶÁ£ºÕý°æCAD
¡¤Ãâ·ÑÁì90Å·ÔªÃÅÆ±£üÖÐÍûÑûÄú¹²¸°ººÅµÍþ£º¹²¼û¹¤ÒµÊý×Ö»¯µÄÈ«Çòͼ¾°2026-02-05
¡¤ ²ú½ÌÈÚºÏÐÂʵ¼ù£ºÖÐÍûЯÊÖ¸»ÁÙ¾«¹¤¼°´¨ÄÚ¸ßУ¾ÙÐÐÊ׽조׿Խ¹¤³Ìʦ±¡±Éè¼Æ´óÈü2026-01-06
¡¤ ÖÐÍûÈí¼þÁÁÏàÕã½Æû³µÊýÖÇ»¯Äê»á£¬£¬£¬£¬£¬£¬£¬ÒÔ3D+¸³ÄÜÆû³µÁ㲿¼þÐÐҵתÐÍÉý¼¶2026-01-04
¡¤ ÖÐÍûÈí¼þÓ뽨Áؼ¯ÍŸ濢սÂÔÏàÖú£¡¹²ÆôÎÀ³øÐÐÒµÊý×Ö»¯Ñз¢ÐÂÕ÷³Ì2026-01-04
¡¤ ÖÐÍûCAD 365ÈëÑ¡±ÏÂíÍþ²»¶¯²ú¿Æ¼¼50Ç¿£ºÔÆÔÉúÐͬ£¬£¬£¬£¬£¬£¬£¬ÖØËÜÉè¼ÆÉú²úÁ¦Ð·¶Ê½2025-12-22
¡¤ ÖÐÍûÈí¼þÓë¸ñÁ¦µçÆ÷¸æ¿¢Õ½ÂÔÏàÖú£¬£¬£¬£¬£¬£¬£¬¹²ÖþÖйúÖÆÔìÊý×Ö»¯×ªÐͱê¸Ë2025-12-22
¡¤ ²®ÀÊÌØ»úеÈË£ºCAXÒ»Ìå»¯Æ½Ì¨Í»ÆÆÉè¼Æ±ÚÀÝ£¬£¬£¬£¬£¬£¬£¬¿ªÆôÖÇÄÜÖÆÔìÐÂÆªÕÂ2025-12-17
¡¤ Ä£¾ß¼Ó¹¤20Ä꣬£¬£¬£¬£¬£¬£¬ËûÌìÌì¶¼ÔÚ¡°Ä¥¡±Ê²Ã´£¿£¿£¿£¿£¿£¿£¿2025-12-15
¡¤ÍæÈ¤3D£ºÔõÑùÓ¦ÓÃÖÐÍû3D£¬£¬£¬£¬£¬£¬£¬¿ìËÙÉè¼Æ»ùÕ¾ÌìÏß´«¶¯Âݸˣ¿£¿£¿£¿£¿£¿£¿2022-02-10
¡¤È¤Íæ3D£ºÊ¹ÓÃÖÐÍû3DÉè¼Æ³µ¶¥ÕÊÅñ£¬£¬£¬£¬£¬£¬£¬Îª»§ÍâÐÝÏÐÔöÌíÐÂ×°±¸2021-11-25
¡¤ÏÖ´úÓëÀúÊ·µÄÅöײ£º°¢¸ù͢ѧÉúÓ¦ÓÃÖÐÍû3D£¬£¬£¬£¬£¬£¬£¬ÊÖÒÕÖØÏִ·ÒÆæ¡°·Éµú¡±Ì¹¿ËÔÐÍ2021-09-26
¡¤ÎÒµÄÖ鱦ÈËÉú£ºÎ÷°àÑÀÉè¼ÆÊ¦ÓÃÖÐÍû3DÉè¼Æ»ªÃÀÖ鱦2021-09-26
¡¤9¸öСÃîÕУ¬£¬£¬£¬£¬£¬£¬Çл»ÖÁÖÐÍûCAD¾¹¿ÉÒÔÔÆÔÆË³º¨³©ËÙ 2021-09-06
¡¤ÔÀ´²åÍ·ÊÇÕâÑùÉè¼ÆµÄ£¬£¬£¬£¬£¬£¬£¬¿´ÍêÄãѧ»áÁËÂ𣿣¿£¿£¿£¿£¿£¿2021-09-06
¡¤ÍæÈ¤3D£ºÔõÑùÇÉÓÃÖÐÍû3D 2022й¦Ð§£¬£¬£¬£¬£¬£¬£¬Éè¼Æ×¨ÊôÏà»ú£¿£¿£¿£¿£¿£¿£¿2021-08-10
¡¤CADÔõÑùÉèÖÃÔÚ¹¤¾ßÌõʹÓôó°´Å¥£¿£¿£¿£¿£¿£¿£¿2022-04-25
¡¤CADÔõÑùÊäÈë½Ç¶È·ûºÅ2016-01-26
¡¤CADÉèÖü«Öá×·×ٽǶȵÄÒªÁì2021-02-04
¡¤CADÐ޸Ļúе°æÎÊÌâÀ¸ºÍÃ÷ϸ±íµÄÒªÁì2024-05-28
¡¤CADÇл»Í¼²ãµÄ¿ì½Ý¼ü2020-02-24
¡¤CAD»úе°æÖÐÔõô×Ô½ç˵±ê×¢ÑùʽÖеÄÎÄ×ÖÑùʽ?2026-03-02
¡¤CADÒýÏß±ê×¢¿ì½Ý¼ü2018-01-09
¡¤CADÖÐÊäÈë¶àÐÐÎÄ×ÖʱÔõÑùÉèÖÃÎÄ×ÖÆ«Ïò£¿£¿£¿£¿£¿£¿£¿2018-08-23

Ãâ·ÑÁìÈ¡30Ì켤»îÂë
ÁªÏµ¿Í·þ
