ÖÆ×÷¼â½ÇºÍÔ²½ÇÊÇCADÖÆÍ¼Àú³ÌÊ®·Ö³£¼ûµÄ²Ù×÷£¬£¬£¬£¬£¬£¬µ«¹ØÓÚCADʹÓÃÐÂÊÖ¶øÑÔ£¬£¬£¬£¬£¬£¬³£³£»£»£»£»£»áÓöµ½ÏëÒª½¨Éè¼â½ÇÈ´½¨³ÉÔ²½ÇµÄÇéÐΣ¬£¬£¬£¬£¬£¬±¾ÎĽ«¸ø¸÷ÈËÏêϸÏÈÈÝCADÖÐʹÓÃFILLETÏÂÁÉè¼â½ÇÓëÓëÔ²½ÇµÄÇø±ð¡£¡£¡£¡£¡£¡£¡£
ÓÃFILLETÏÂÁî»Ô²½Ç£º
1.ÓÃÖÐÍûCAD·¿ªÒ»ÕÅͼֽÎļþ£¬£¬£¬£¬£¬£¬Ëõ·Åµ½ºÏÊʵÄÏÔʾλÖ㻣»£»£»£»

2.ÔÚÏÂÁîÐÐÖÐÊäÈ롾FILLET¡¿ÏÂÁ£¬£¬£¬£¬£¬°´»Ø³µ¼üÈ·ÈÏ¿ªÆô£»£»£»£»£»
3.ÔÚÏÂÁîÐÐÖÐÊäÈ롾R¡¿£¬£¬£¬£¬£¬£¬°´»Ø³µÈ·ÈÏ£»£»£»£»£»ÔÙÊäÈ롾2¡¿£¬£¬£¬£¬£¬£¬°´»Ø³µÈ·ÈÏ£»£»£»£»£»ÕâÑù¾Í½«µ¹Ô²½ÇµÄ°ë¾¶ÉèÖóÉÁË2¡£¡£¡£¡£¡£¡£¡£
4.ÈôÊÇÐèÒª¶Ô¶à¸ö¹¤¾ß¾ÙÐе¹Ô²½Ç£¬£¬£¬£¬£¬£¬¿ÉÒÔÔÙÔÚÏÂÁîÐÐÖÐÊäÈ롾M¡¿Ñ¡Ôñ¶à¸ö£¬£¬£¬£¬£¬£¬ÕâÑù´¦Öóͷ£ÍêÒ»¸öµ¹Ô²½Çºó²»ÐèÒªÔÙ´ÎÆô¶¯FilletÏÂÁî¾Í¿ÉÒÔÖ±½ÓÑ¡ÔñÏÂÒ»¸öµ¹Ô²½Ç¹¤¾ß£»£»£»£»£»

5.Ñ¡ÔñͼʾÖеÄˮƽÏß×÷ΪµÚÒ»¸ö¹¤¾ß£¬£¬£¬£¬£¬£¬ÔÙÑ¡Ôñ±ÊÖ±Ïß×÷ΪµÚ¶þ¸öÐèÒªµ¹Ô²½ÇµÄ¹¤¾ß¡£¡£¡£¡£¡£¡£¡£ÕâÑù¾ÍÍê³ÉÁËÁ½Ìõ´¹ÏßÖ®¼äµÄµ¹Ô²½Ç£¬£¬£¬£¬£¬£¬ÈçͼËùʾ£º



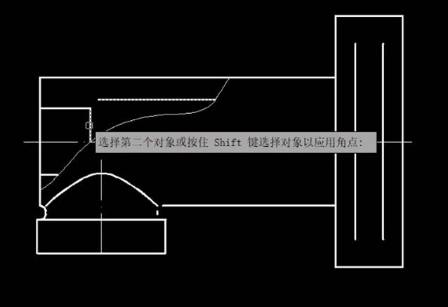
ÓÃFILLETÏÂÁâ½Ç£º
1.ÔÙ´ÎÔÚÏÂÁîÐÐÖÐÊäÈ롾FILLET¡¿ÏÂÁ£¬£¬£¬£¬£¬°´»Ø³µ¼üÈ·ÈÏ¿ªÆô£»£»£»£»£»ÏÂÁîÐÐÖлᵯ³ö¡°Ä¿½ñÉèÖá±£¬£¬£¬£¬£¬£¬ÓÉͼ¿ÉÒÔ¿´µ½Ä¿½ñ°ë¾¶ÉèΪÁË2£»£»£»£»£»

2.Ñ¡ÔñˮƽÏß×÷ΪµÚÒ»¸öµ¹Ô²½Ç¹¤¾ß£»£»£»£»£»ÈôÊÇ´Ëʱֱ½ÓÑ¡ÔñµÚ¶þ¸ö¹¤¾ß£¬£¬£¬£¬£¬£¬Ôòϵͳ»áн¨Ò»¸ö°ë¾¶Îª2µÄµ¹Ô²½Ç£¬£¬£¬£¬£¬£¬Òò´ËÔÚÑ¡ÔñµÚ¶þ¸ö¹¤¾ßʱ£¬£¬£¬£¬£¬£¬Ó¦¸Ã°´×¡Shift¼ü£¬£¬£¬£¬£¬£¬Í¬Ê±ÔÙÑ¡Ôñ±ÊÖ±µÄÏ߶Σ¬£¬£¬£¬£¬£¬Ôò´Ëʱϵͳ»áÒÔ0×÷Ϊ°ë¾¶£¬£¬£¬£¬£¬£¬Ð½¨Ò»¸ö¼â½Ç£¬£¬£¬£¬£¬£¬ÈçͼËùʾ£º


ÒÔÉϾÍÊǽ¨ÉèÔ²½ÇÓë¼â½ÇµÄÇø±ð£¬£¬£¬£¬£¬£¬Äãѧ»áÁËÂ𣿣¿£¿£¿£¿£¿£¿£¿
ÍÆ¼öÔĶÁ£ºÕý°æCAD
ÍÆ¼öÔĶÁ£ºCADÏÂÔØ
¡¤Ãâ·ÑÁì90Å·ÔªÃÅÆ±£üÖÐÍûÑûÄú¹²¸°ººÅµÍþ£º¹²¼û¹¤ÒµÊý×Ö»¯µÄÈ«Çòͼ¾°2026-02-05
¡¤ ²ú½ÌÈÚºÏÐÂʵ¼ù£ºÖÐÍûЯÊÖ¸»ÁÙ¾«¹¤¼°´¨ÄÚ¸ßУ¾ÙÐÐÊ׽조׿Խ¹¤³Ìʦ±¡±Éè¼Æ´óÈü2026-01-06
¡¤ ÖÐÍûÈí¼þÁÁÏàÕã½Æû³µÊýÖÇ»¯Äê»á£¬£¬£¬£¬£¬£¬ÒÔ3D+¸³ÄÜÆû³µÁ㲿¼þÐÐҵתÐÍÉý¼¶2026-01-04
¡¤ ÖÐÍûÈí¼þÓ뽨Áؼ¯ÍŸ濢սÂÔÏàÖú£¡¹²ÆôÎÀ³øÐÐÒµÊý×Ö»¯Ñз¢ÐÂÕ÷³Ì2026-01-04
¡¤ ÖÐÍûCAD 365ÈëÑ¡±ÏÂíÍþ²»¶¯²ú¿Æ¼¼50Ç¿£ºÔÆÔÉúÐͬ£¬£¬£¬£¬£¬£¬ÖØËÜÉè¼ÆÉú²úÁ¦Ð·¶Ê½2025-12-22
¡¤ ÖÐÍûÈí¼þÓë¸ñÁ¦µçÆ÷¸æ¿¢Õ½ÂÔÏàÖú£¬£¬£¬£¬£¬£¬¹²ÖþÖйúÖÆÔìÊý×Ö»¯×ªÐͱê¸Ë2025-12-22
¡¤ ²®ÀÊÌØ»úеÈË£ºCAXÒ»Ìå»¯Æ½Ì¨Í»ÆÆÉè¼Æ±ÚÀÝ£¬£¬£¬£¬£¬£¬¿ªÆôÖÇÄÜÖÆÔìÐÂÆªÕÂ2025-12-17
¡¤ Ä£¾ß¼Ó¹¤20Ä꣬£¬£¬£¬£¬£¬ËûÌìÌì¶¼ÔÚ¡°Ä¥¡±Ê²Ã´£¿£¿£¿£¿£¿£¿£¿£¿2025-12-15
¡¤ÍæÈ¤3D£ºÔõÑùÓ¦ÓÃÖÐÍû3D£¬£¬£¬£¬£¬£¬¿ìËÙÉè¼Æ»ùÕ¾ÌìÏß´«¶¯Âݸˣ¿£¿£¿£¿£¿£¿£¿£¿2022-02-10
¡¤È¤Íæ3D£ºÊ¹ÓÃÖÐÍû3DÉè¼Æ³µ¶¥ÕÊÅñ£¬£¬£¬£¬£¬£¬Îª»§ÍâÐÝÏÐÔöÌíÐÂ×°±¸2021-11-25
¡¤ÏÖ´úÓëÀúÊ·µÄÅöײ£º°¢¸ù͢ѧÉúÓ¦ÓÃÖÐÍû3D£¬£¬£¬£¬£¬£¬ÊÖÒÕÖØÏִ·ÒÆæ¡°·Éµú¡±Ì¹¿ËÔÐÍ2021-09-26
¡¤ÎÒµÄÖ鱦ÈËÉú£ºÎ÷°àÑÀÉè¼ÆÊ¦ÓÃÖÐÍû3DÉè¼Æ»ªÃÀÖ鱦2021-09-26
¡¤9¸öСÃîÕУ¬£¬£¬£¬£¬£¬Çл»ÖÁÖÐÍûCAD¾¹¿ÉÒÔÔÆÔÆË³º¨³©ËÙ 2021-09-06
¡¤ÔÀ´²åÍ·ÊÇÕâÑùÉè¼ÆµÄ£¬£¬£¬£¬£¬£¬¿´ÍêÄãѧ»áÁËÂ𣿣¿£¿£¿£¿£¿£¿£¿2021-09-06
¡¤ÍæÈ¤3D£ºÔõÑùÇÉÓÃÖÐÍû3D 2022й¦Ð§£¬£¬£¬£¬£¬£¬Éè¼Æ×¨ÊôÏà»ú£¿£¿£¿£¿£¿£¿£¿£¿2021-08-10
¡¤CAD»æÖÆÒ»¸ö¼òÆÓµÄ»¨Æ¿Æ½ÃæÍ¼µÄ¼¼ÇÉ2018-07-10
¡¤ÎªÊ²Ã´Ê¹ÓÃCAD¿ì½Ý¼üARÕóÁй¦Ð§µ«Ã»ÓÐÑ¡ÔñÕóÁз½·¨ÁÐ±í£¿£¿£¿£¿£¿£¿£¿£¿2024-07-29
¡¤¿ìËÙ·¿ªCADµÄ¹¤¾ßÌØÕ÷ÖÎÀíÆ÷£¨ÌØÕ÷Ãæ°å£©2017-06-19
¡¤CAD»æÖÆÀ¬»ø½ÓÄÉͼ±ê2022-11-14
¡¤CAD±à¼ÑùÌõÇúÏßµÄÒªÁì2021-01-25
¡¤ÎªÊ²Ã´CAD¸´ÖÆÍ¼ÐηºÆð»ºÂý»òʧ°Ü£¿£¿£¿£¿£¿£¿£¿£¿2024-01-09
¡¤CADÔõôƾ֤¸¡¶¯¹æÄ£Ñ¡ÔñÔ²2025-01-02

Ãâ·ÑÁìÈ¡30Ì켤»îÂë
ÁªÏµ¿Í·þ
