»æÖÆÐÞ½¨Æ½ÃæÍ¼Ç°µÄ×¼±¸ÊÂÇ飿£¿£¿£¿£¿£¿£¿

 

ÓÃCAD»æÖÆÐÞ½¨Æ½ÃæÍ¼µÄʱ¼ä£¬£¬ £¬£¬£¬£¬£¬£¬»¹ÐèÒª×öһЩ׼±¸ÊÂÇ飬£¬ £¬£¬£¬£¬£¬£¬ÏêϸÊÇʲôÇë¿´ÏÂÃæµÄ·ÖÏí¡£¡£¡£¡£ ¡£¡£

 

ÔÚ»æÖÆÐÞ½¨Æ½ÃæÍ¼µÄʱ¼ä£¬£¬ £¬£¬£¬£¬£¬£¬ÎÒÃÇÒªÇåÎúµÄÖªµÀÐÞ½¨Æ½ÃæÍ¼µÄ×é³É£¬£¬ £¬£¬£¬£¬£¬£¬ºÃ±ÈʲôÊÇÖáÏß¡¢Ê²Ã´ÊÇÃÅ´°¡¢Ê²Ã´ÊÇǽÌ塢ʲôÊDZê×¢£¬£¬ £¬£¬£¬£¬£¬£¬Ö»ÓÐÏàʶÁËÕâЩ£¬£¬ £¬£¬£¬£¬£¬£¬²Å»ª¿ìËٵĻæÖƳöÐÞ½¨Æ½ÃæÍ¼¡£¡£¡£¡£ ¡£¡£

Èçͼ£¬£¬ £¬£¬£¬£¬£¬£¬ÖáÏß¡¢ÃÅ´°¡¢Ñǫ̂¡¢±ê×¢¡¢Ç½Ìå¡£¡£¡£¡£ ¡£¡£

»æÖÆÐÞ½¨Æ½ÃæÍ¼Ç°µÄ×¼±¸ÊÂÇ飿£¿£¿£¿£¿£¿£¿

 

»æÖÆÐÞ½¨Æ½ÃæÍ¼µÄ²Ù×÷°ì·¨ÊÇ£º

1¡¢·­¿ªÖÐÍûCADÈí¼þ£¬£¬ £¬£¬£¬£¬£¬£¬½çÃæÊÇÈçÏ£º

»æÖÆÐÞ½¨Æ½ÃæÍ¼Ç°µÄ×¼±¸ÊÂÇ飿£¿£¿£¿£¿£¿£¿

2¡¢ÔÚ³£Óò˵¥À¸ÖÐÕÒµ½Í¼²ã¹¤¾ßÀ¸£¬£¬ £¬£¬£¬£¬£¬£¬µã»÷ͼ²ãÌØÕ÷¡£¡£¡£¡£ ¡£¡£²¢ÇÒн¨¡°Ç½Ìå/ÖáÏß/ÃÅ´°/±ê×¢¡±Í¼²ã£¬£¬ £¬£¬£¬£¬£¬£¬²¢¸øÍ¼²ã¸¶ÓëÊôÐÔ£¨ÑÕÉ«/ÏßÐ͵ȣ©£¬£¬ £¬£¬£¬£¬£¬£¬Èçͼ £º

»æÖÆÐÞ½¨Æ½ÃæÍ¼Ç°µÄ×¼±¸ÊÂÇ飿£¿£¿£¿£¿£¿£¿

 

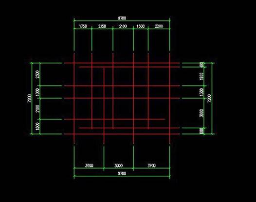
3¡¢´ýÈí¼þͼ²ã½¨ºÃÖ®ºó£¬£¬ £¬£¬£¬£¬£¬£¬ÏÈÔÚÖáÏßͼ²ãÉϽ¨ÉèºÃÖáÏßÍø£¬£¬ £¬£¬£¬£¬£¬£¬È»ºóÒÀÍÐÖáÏßÍø£¬£¬ £¬£¬£¬£¬£¬£¬ÔÚ±êעͼ²ã£¬£¬ £¬£¬£¬£¬£¬£¬±ê×¢ÖáÏ߳ߴ磬£¬ £¬£¬£¬£¬£¬£¬Íê³ÉÖáÏߺͱê×¢£¬£¬ £¬£¬£¬£¬£¬£¬Èçͼ£º

»æÖÆÐÞ½¨Æ½ÃæÍ¼Ç°µÄ×¼±¸ÊÂÇ飿£¿£¿£¿£¿£¿£¿

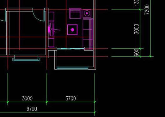
4¡¢´ýÖáÏߺͱêעͼ²ãÍê³ÉÖ®ºó£¬£¬ £¬£¬£¬£¬£¬£¬ÒÀÍÐÖáÏß»æÖÆÇ½Ì壬£¬ £¬£¬£¬£¬£¬£¬»æÖÆÍê³ÉÖ®ºó£¬£¬ £¬£¬£¬£¬£¬£¬Áô³öÃÅ´°µÄλÖ㬣¬ £¬£¬£¬£¬£¬£¬´ýǽÌ廿֯Íê³ÉÖ®ºó£¬£¬ £¬£¬£¬£¬£¬£¬»æÖÆÃÅ´°£¬£¬ £¬£¬£¬£¬£¬£¬´ýÃÅ´°»æÖÆÍê³ÉÖ®ºó£¬£¬ £¬£¬£¬£¬£¬£¬¼´¿É»æÖƼҾߣ¬£¬ £¬£¬£¬£¬£¬£¬´ý¼Ò¾ßÍê³ÉÖ®ºó£¬£¬ £¬£¬£¬£¬£¬£¬¼´Íê³ÉÐÞ½¨Æ½ÃæÍ¼µÄ»æÖÆ¡£¡£¡£¡£ ¡£¡£Èçͼ£º

»æÖÆÐÞ½¨Æ½ÃæÍ¼Ç°µÄ×¼±¸ÊÂÇ飿£¿£¿£¿£¿£¿£¿

ÉÏÃæ¾ÍÊÇ»æÖÆÐÞ½¨Æ½ÃæÍ¼ÐèҪ׼±¸µÄÌõ¼þÊÂÇéÒÔ¼°Ïêϸ°ì·¨£¬£¬ £¬£¬£¬£¬£¬£¬Ï£Íû¸÷È˵Äϲ»¶¡£¡£¡£¡£ ¡£¡£



ÍÆ¼öÔĶÁ£ºCADÖÆÍ¼³õѧÈëÃÅ

ÍÆ¼öÔĶÁ£ºÖÐСѧ×ÛºÏʵ¼ùÔ˶¯

×îÐÂ×ÊѶ ÂÄÀú¼¼ÇÉ CAD³£¼ûÎÊÌâ
Öйú¡¤yl23411(ÓÀÀû)¼¯ÍŹÙÍø-Officialwebsite Öйú¡¤yl23411(ÓÀÀû)¼¯ÍŹÙÍø-Officialwebsite
Á¬Ã¦»ñÈ¡±¨¼Û
Öйú¡¤yl23411(ÓÀÀû)¼¯ÍŹÙÍø-Officialwebsite
ÇëÌîдÐÕÃû
ÐÕÃûÖÁÉÙÊäÈë2¸ö×Ö·û
ÐÕÃû½öÖ§³Öºº×Ö¡¢×Öĸ
ÑéÖ¤
»ñÈ¡ÑéÖ¤Âë
ÇëÌîдÊÖ»úºÅ
ÇëÌîд׼ȷµÄÊÖ»úºÅ
ÑéÖ¤Âë
ÑéÖ¤ÂëӦΪ6λÊý×Ö
ÑéÖ¤Âë¹ýʧ
ÇëÌîд¹«Ë¾Ãû³Æ
¹«Ë¾Ãû³Æ½öÖ§³Öºº×Ö¡¢×Öĸ
Öйú¡¤yl23411(ÓÀÀû)¼¯ÍŹÙÍø-Officialwebsite
ÆäËû
ÇëÑ¡ÔñÐÐÒµ
ÇëÏÈÔĶÁ²¢Ô޳ɡ¶Òþ˽Õþ²ß¡·
Öйú¡¤yl23411(ÓÀÀû)¼¯ÍŹÙÍø-Officialwebsite
ÖÐÍûCAD
ϵͳÐèÇó ÀúÊ·°æ±¾
Öйú¡¤yl23411(ÓÀÀû)¼¯ÍŹÙÍø-Officialwebsite
ÖÐÍû3D
ϵͳÐèÇó ÀúÊ·°æ±¾
Öйú¡¤yl23411(ÓÀÀû)¼¯ÍŹÙÍø-Officialwebsite
¹Ø×¢¹«ÖÚºÅ
Ãâ·ÑÁìÈ¡30Ì켤»îÂë
Öйú¡¤yl23411(ÓÀÀû)¼¯ÍŹÙÍø-Officialwebsite Öйú¡¤yl23411(ÓÀÀû)¼¯ÍŹÙÍø-Officialwebsite
Öйú¡¤yl23411(ÓÀÀû)¼¯ÍŹÙÍø-OfficialwebsiteÁªÏµ¿Í·þ
Öйú¡¤yl23411(ÓÀÀû)¼¯ÍŹÙÍø-Officialwebsite Öйú¡¤yl23411(ÓÀÀû)¼¯ÍŹÙÍø-Officialwebsite